Dreizimmerwohnung neu, zweite Etage, Aspra Chomata, Nikea

€ 250.000
3
80 m²
2
2
Ja
Balkon
Keller

Notiz

Anzeige aktualisiert am: 14.04.2026
Beschreibung

Referenz: 305

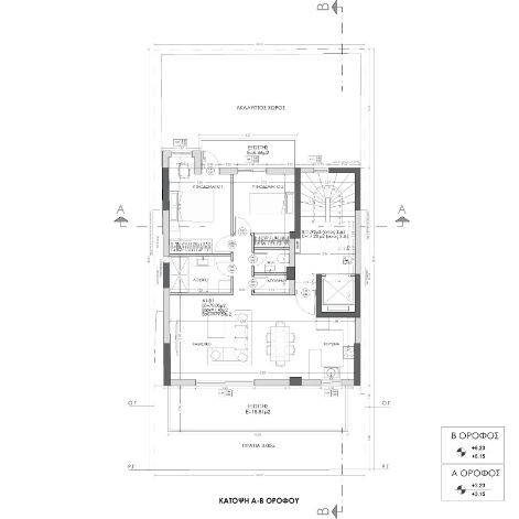
Πωλείται πολυτελές οροφοδιαμέρισμα 80 τμ στον Β όροφο σε υπό ανέγερση οικοδομή σε κεντρικό σημείο στη Νίκαια. Διαθέτει θέση στάθμευσης στην Πυλωτή και αποθήκη στο Υπόγειο. Υπάρχουν αναμονές για ηλιακό, συναγερμό και ηλεκτρικές τέντες. Τα αλουμίνια είναι μάρκας Εuropa. Τα ντουλάπια κουζίνας είναι από Βακελίτη και οι ντουλάπες στις κρεβατοκάμαρες είναι συρόμενες. Το διαμέρισμα διαθέτει και εσωτερική αποθήκη. Οι παροχές βαρύνουν τον κατασκευαστή.
Merkmale
Art
Wohnung | Luxusimmobilienklasse
Vertrag
Verkauf | Zinsgrundstück
Etage
2 etage
Stockwerke im Gebäude
8
Aufzug
Ja
Fläche
80 m²
Zimmer
3
Schlafzimmer
2
Badezimmer
2
Möbliert
Nein
Balkon
Ja
Garage, parkplätze (auto)
1 parkplatz(e)
Heizung
Zentralheizung, methan betrieben
Klimaanlage
Eigenständig, kalt / warm
Andere Merkmale
  • Alarmanlage
  • Fensterrahmen mit Doppelverglasung / Metall
  • Straßenseite
  • Gepanzerte Tür
Preisinformationen
Preis
€ 250.000
Preis pro m²
3.125 €/m²
Energieeffizienz

Energieverbrauch

A

Entdecken Sie jeden Winkel des Anwesens
+9
Zusätzliche Optionen

Inserenten kontaktieren

Oder