Single-family detached house Ελύτη Οδυσσέα 2, Νέα Μηχανιώνα 57004, Center, Michaniona

€ 220,000
4
90 m²
3+
No
Balcony

Note

Listing updated on 02/10/2026
Description

This description has been translated automatically by Google Translate and may not be accurate

reference: 14620

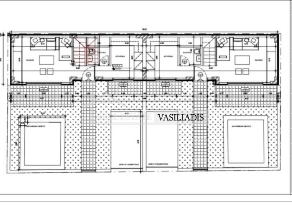
Property code: 14620 - Nea Michaniona FOR SALE newly built detached house with a total area of ​​90. sq.m. on a plot of 100 sq.m. . It consists of 3 bedrooms, living room, kitchen, 4 bathrooms. It was built in 2025 with energy class A+ and has heat pump heating, unlimited views, tiled floors, armored door, garden, swimming pool, balconies 40 sq.m. distance from airport 17000 meters - Price: € 220,000 Nea Michaniona for sale 2 adjoining detached houses of 90 sq.m. each. GROUND FLOOR living room, kitchen, bathroom, 1st FLOOR 2 rooms, 2 bathrooms (each room has its own bathroom), and upstairs 1 room, bathroom. Each one has a private pool, parking, excellent construction, price 220,000 euros. Ideal for investment as it can yield a high rental yield, but also for owner-occupancy. The location and position on the map are indicative. The Office bears no responsibility for changes in property prices as owners may change the price at any time and many times without notice. The prices we mention are the prices given on the day of the sale by our office. The information and characteristics of the properties have been registered based on data and information provided by the principal. When indicating the property, it is necessary to indicate your identity and your VAT number in accordance with Law 4072 / 11-4-2012 Government Gazette 86A Real Estate Vasiliadis Kostas Agiou Nikolaou 2. Nea Michaniona web site: www.vasiliadis-property.com email: info@vasiliadis-property.com contact numbers: 23920 36082, 6976 330 340.
Features
Type
Single-family detached house | Luxury property
Contract
Sale | Income property
Floor
1 floor
Lift
No
Surface
90 m²
Rooms
4
Bedrooms
3
Bathrooms
3+
Furnished
No
Balcony
Yes
Garage, car parking
1 parking space
Heating
Central, powered by heat pump
Other features
  • External exposure
  • Security door
  • Pool
Price information
Price
€ 220,000
Price per m²
2,444 €/m²
Energy efficiency

Energy consumption

A+

Discover every corner of the property
+9
Additional options

Contact the advertiser

Or