Building for Sale

€ 960,000
5+
778 m²
3+

Note

Listing updated on 10/09/2025
Description

This description has been translated automatically by Google Translate and may not be accurate

reference: 331301

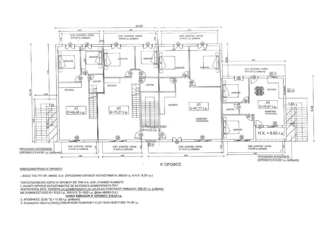
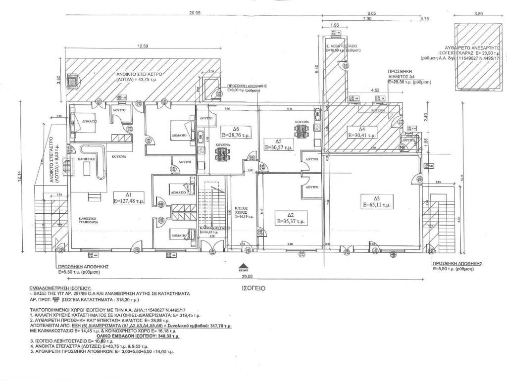
In Mouzaki, Zakynthos, on the Provincial Road, a building with a total surface of 778 sq.m. is available for sale. The property consists of multiple apartments, making it suitable either for investment purposes or private use. It is carefully maintained, recently renovated, equipped with autonomous heating, a boiler room, parking spaces and a garden. All apartments have access to either a yard or a veranda, while the larger ones enjoy both. On the ground floor, the following are located: Apartment of 127 sq.m. with 4 rooms, 2 bathrooms, living room, dining room, and kitchen. Apartment of 65 sq.m. with living room, kitchen, dining area, bedroom, and bathroom. Apartment of 30 sq.m. with kitchen, bedroom, and bathroom. Three unfinished apartments of 29 sq.m., 30 sq.m., and 35 sq.m., each with living room, bedroom, kitchen, and bathroom. On the first floor, there are: Apartment of 66 sq.m. with living room, kitchen, bathroom, 2 bedrooms, and access to the attic. Apartment of 75 sq.m. with living room, kitchen, bathroom, 2 bedrooms, and access to the attic. Apartment of 98 sq.m. with kitchen, dining room, bathroom, and 2 bedrooms. Apartment of 60 sq.m. with living room, open-plan kitchen with dining area, bathroom, and 2 bedrooms. The attic is divided into three sections, two of which are connected with the 66 sq.m. and 75 sq.m. apartments, and remains unfinished. This property offers multiple investment opportunities, ideal either as a residential complex with rental potential or as an income-generating asset in a strategic location of the island with easy access.
Features
Contract
Sale | Income property
Type
Building | Luxury property
Surface
778 m²
Rooms
5+ rooms, 3+ bathrooms
Building floors
3
Garage, car parking
12 parking space
Availability
Available from 09/10/2025
Current building use
Residential
Other features
  • Attic
  • External exposure
  • Fireplace
  • Security door
  • Exposure north, west
Price information
Price
€ 960,000
Price per m²
1,234 €/m²
Energy efficiency

Energy consumption

B+

Discover every corner of the property
+14
Additional options

Contact the advertiser

Or