

Note
This description has been translated automatically by Google Translate and may not be accurate
reference: ΝΝ532
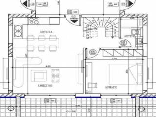
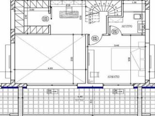
Maisonette for sale in Thermi of Thessaloniki - Suburbs for 305.000€ (Listing No ΝΝ532). Another property brought to you by house360. Located in the administrative area of Thermi, region of Thessaloniki - Suburbs, this property is now available for sale. This maisonette is sized about 104sqm. Altough the building is under construction, it is expected to be finished on the highest standards of the Market which can be seen through the available photos accompanying the listing.
This property develops on 2 levels and features 2 bedrooms, an open kitchen with a living room and 2 bathrooms.
Walking through the property someone can feel the spacious sitting room while yet being able to envision any possible changes within rooms. Secondary and supplementary rooms are also a bonus for the property as it has a storage room.
View-wise, the property enjoys open view. This property comes with wood and tile flooring.
Other features that the property enjoy, include: autonomous heating system with heatpump, synthetic joinery with triple glass, secure door, garage with a parking spot.
The asking price is 305.000€. For avoiding inconvenience, please use the following reference number when contacting us referring to the above property: Listing No = ΝVΝ532.

Energy consumption
A+