

Note
This description has been translated automatically by Google Translate and may not be accurate
reference: 733130
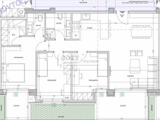
Thessaloniki, Panorama: For sale frontage Apartment 128.16sq.m. luxury construction, on the ground floor with a garden of 106.70 sq. It consists of a living room, kitchen, 3 bedrooms, 1 of which is a master with wardrobe and bathroom and the apartment's bathroom... Individual gas underfloor heating... It has aluminum frames with double glazing, armored door, air conditioning, alarm, solar water heater, satellite antenna, underground storage of 5.25 sqm and underground parking space with supply for an electric car.. The complex has a swimming pool... Price €400,000 | Property Code: #733130 cozy
Energy consumption
A+