Single family villa, new, 91 m², Ampelokipoi, Zakynthos - Main town

€ 300,000
3
91 m²
1
Cellar

Note

Listing updated on 01/10/2026
Description

This description has been translated automatically by Google Translate and may not be accurate

reference: 041125

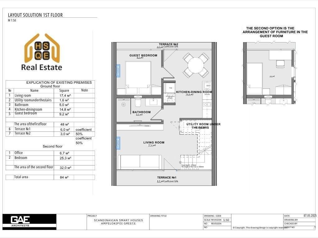
Scandinavian Villa for Sale — Zakynthos, Greece A modern villa in the heart of Zakynthos, where the purity of Scandinavian design meets the warmth of the Mediterranean atmosphere. The project consists of 12 villas, located in a peaceful and picturesque part of the island, surrounded by vineyards, offering mountain views within a secure gated community. The convenient location ensures easy access to the town center and all essential infrastructure. Architecture & Construction The project is developed by Eleven Group in collaboration with the Italian architectural bureau Alpeas and the German company MK Fertighaus. This international partnership brings together advanced technologies, energy efficiency, and refined aesthetics. Layout The villa spans two levels and features a spacious double-height living area. Total area: 85–91 m² Plot size: 250–450 m² Ground floor: • Living room • Kitchen and dining area • Bedroom • Shower room • Storage room • Terraces First floor: • Master bedroom • Office • Double-height area Features & Equipment • Fully equipped kitchen • Air conditioning system • Water reservoir • Starlink internet system • Optional installations: swimming pool (6×3 m), carport, and solar power system (inverter + 20 kWh battery capacity) Additional options and specifications are available upon request. Investment Potential The villa is ideal both for personal use and as an investment property. • Potential rental yield: up to 9% annually • Forecasted value growth: 10–20% over 2–3 years Construction Timeline • Start: February–March 2026 • Completion: within 12–18 months
Features
Type
Single family villa | Luxury property
Contract
Sale
Surface
91 m²
Rooms
3
Bedrooms
2
Bathrooms
1
Heating
Central
Price information
Price
€ 300,000
Price per m²
3,297 €/m²
Energy efficiency

Energy consumption

A+

Discover every corner of the property
+11
Additional options

Contact the advertiser

Or