3-room flat excellent condition, ground floor, Agios Dimitrios, Thessaloniki - Center

€ 187,000
3
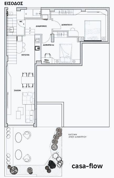
90 m²
1
G
Balcony
Furnished

Note

Listing updated on 02/17/2026
Description

reference: 18594498

Στο ιστορικό κέντρο της Θεσσαλονίκης, εκεί όπου χτυπάει ο παλμός της πόλης, προσφέρεται ενα πανέμορφο επενδυτικό με δύο υπνοδωμάτια σαλόνι κουζίνα μπάνιο διαμέρισμα 90τ.μ με δίκαια του αυλή και ξεχωριστή είσοδο προς πώληση. Σε απόσταση αναπνοής από τα Πανεπιστήμια, μόλις δέκα λεπτά με τα πόδια, συναντά κανείς μια πρόταση κατοικίας που συνδυάζει την πολυτέλεια με την άνεση.
Στο διαμέρισμα θα γίνει πλήρης ανακαίνιση υψηλής αισθητικής, με σύγχρονη μόνωση, και ολοκαίνουργιες υδραυλικές εγκαταστάσεις. Επιπλωμένο με φροντίδα και εξοπλισμένο με όλες τις απαραίτητες ηλεκτρικές συσκευές, η κατοικία αυτή προσφέρει έναν έτοιμο και φιλόξενο χώρο, ιδανικό για φοιτητές, μια οικογενια ,ένα ζευγάρη και νέους επαγγελματίες ή για όποιον αναζητά ένα κομψό καταφύγιο στο κέντρο..
Ο χώρος που υπάρχει θα μεταμορφωθεί με έμπνευση σε ένα πανέμορφο γεμάτο με αισθητική σπίτι δίνοντας έτσι ζωή στο διαμερίσματα που θα αποπνέει φρεσκάδα, λειτουργικότητα και αρμονία.
Μια σπάνια ευκαιρία για ιδιοκατοίκηση ή επένδυση, σε σημείο στρατηγικό, εκεί όπου η παράδοση συναντά τη ζωντάνια της φοιτητικής Θεσσαλονίκης.
Άριστο για ιδιόχρηση, εκμετάλλευση, Rbnb και όχι ΜΟΝΟΝ.
Για την υπόδειξη του ακινήτου χρειάζεται αστυνομική ταυτότητα ή διαβατήριο....
Υπεύθυνος ακινήτου casa -flow Real Estate... Τηλέφωνο επικοινωνίας 6949833671 και 6946201720
Features
Type
Apartment | Luxury property
Contract
Sale | Income property
Floor
Ground floor
Surface
90 m²
Rooms
3
Bedrooms
2
Bathrooms
1
Furnished
Yes
Balcony
Yes
Air conditioning
Independent, cold/hot
Other features
  • External exposure
  • Security door
  • TV system with satellite dish
  • Window frames in double glass / metal
Price information
Price
€ 187,000
Price per m²
2,078 €/m²
Detail of costs
Condominium fees
€ 5/month
Energy efficiency

Energy consumption

A+

Discover every corner of the property
+16
Additional options

Contact the advertiser

Or