

Note
This description has been translated automatically by Google Translate and may not be accurate
reference: 12543
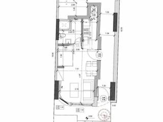
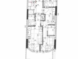
Piraeus, Evangelistria: A 390 sq.m. 5 -level facade. It consists of 6 bedrooms, 6 kitchens, 6 lounges and 6 bathrooms. It is made in 1980 and has an A+energy class. The property has the following layout: 83 sq.m. Basement78 sq.m. ground floor of 79 sq.m. 1st floor79 sq.m. 2nd floor36 sq.m. Roof 3rd floor building is in a privileged location near all public transport, market and catering stores. They will be delivered in 4 months 6 studio refurbished and fully equipped. It is ideal for students or employees or for professional use. Price 1.450.000 € Property Code: #12542
Energy consumption
A+