

Note
This description has been translated automatically by Google Translate and may not be accurate
reference: 12582
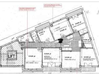
Suburbs of Piraeus, Nikaia: For sale: renovated airy corner office building 400 sq.m. with elevator. Suitable for a medical center, frontage on the ground floor of 3 levels. It consists of 3 rooms, storage room and 3 WC. It is fully furnished, built in 1957, fully renovated in 2026 and has aluminum frames, security door, energy class B, tiled floors, alarm. The property has the following floor plan: Ground floor: 143.50 1st floor: 150.582nd floor: 104.13. Price €680,000 Property Code: #12582
Energy consumption
B