Studio for sale, Mpotsari, Analipsi - Mpotsari - Nea Paralia

€ 115,000
2
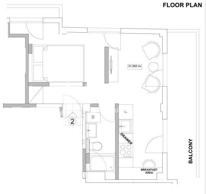
38 m²
1
3
Yes
Furnished

Note

Listing updated on 11/26/2025
Description

This description has been translated automatically by Google Translate and may not be accurate

reference: 113196

Property Code: 113196 - Studio FOR SALE in Thessaloniki Mpotsari for € 115.000 . This 38.00 sq. m. furnished Studio is on the 3 rd floor and features 1 Bedroom, an open-plan kitchen/living room, bathroom . The property also boasts Heating system: Individual - Natural gas, tiled floor, view of the Urban landscape, Window frames: Synthetic, Security door, elevator, A/C, electrical appliances, double-glazed windows. The building was constructed in 1965 . Building Energy Rating: C

According to Law 4072/2012, in order to indicate the property, it is necessary to show the police ID/passport or the tax registration number and record them in the instruction of indication of the property. The indication on the map does not indicate the exact location of the property but generally the area in which it is located. For any of your real estate needs, contact us. Our office is located in the central-east of the city and serves the entire urban complex of Thessaloniki. Like us on Facebook https://www.facebook.com/PistiRealEstate to be the first to see our assignments! Also, check out our customer reviews that we served https://www.facebook.com/PistiRealEstate/reviews! Yours sincerely, The team of the Pisti Real Estate agency, 2310930615 Cleanthus 64, 54453, Kato Toumpa, Thessaloniki, Macedonia, Greece Website: www.pisti-realestate.gr * Email: info@pisti-realestate.gr
If you want to know more, you can talk to Νάσος Παπαθανασίου.
Features
Type
Studio | Luxury property
Contract
Sale
Floor
3 floor
Lift
Yes
Surface
38 m²
Rooms
2
Bedrooms
1
Bathrooms
1
Furnished
Yes
Balcony
No
Heating
Independent, powered by methane
Air conditioning
Independent, cold/hot
Other features
  • Security door
  • Window frames in double glass / PVC
Price information
Price
€ 115,000
Price per m²
3,026 €/m²
Energy efficiency

Energy consumption

Γ

Discover every corner of the property
+17
Advertiser
agent male

Νάσος Παπαθανασίου

agency card
Additional options

Contact the advertiser

Or
agent male

Νάσος Παπαθανασίου