

reference: 8-43588
Maisonette for sale in Center, Oreokastro of Thessaloniki - Suburbs for 550.000€ (Listing No 8-43588). Another property brought to you by Sovereign Brokers. Located in the administrative area of Oreokastro, region of Thessaloniki - Suburbs, this luxurious property is now available for sale. Being a seaview maisonette, it is sized about 183sqm. Altough the building is under construction, it is expected to be finished on the highest standards of the Market which can be seen through the available photos accompanying the listing.
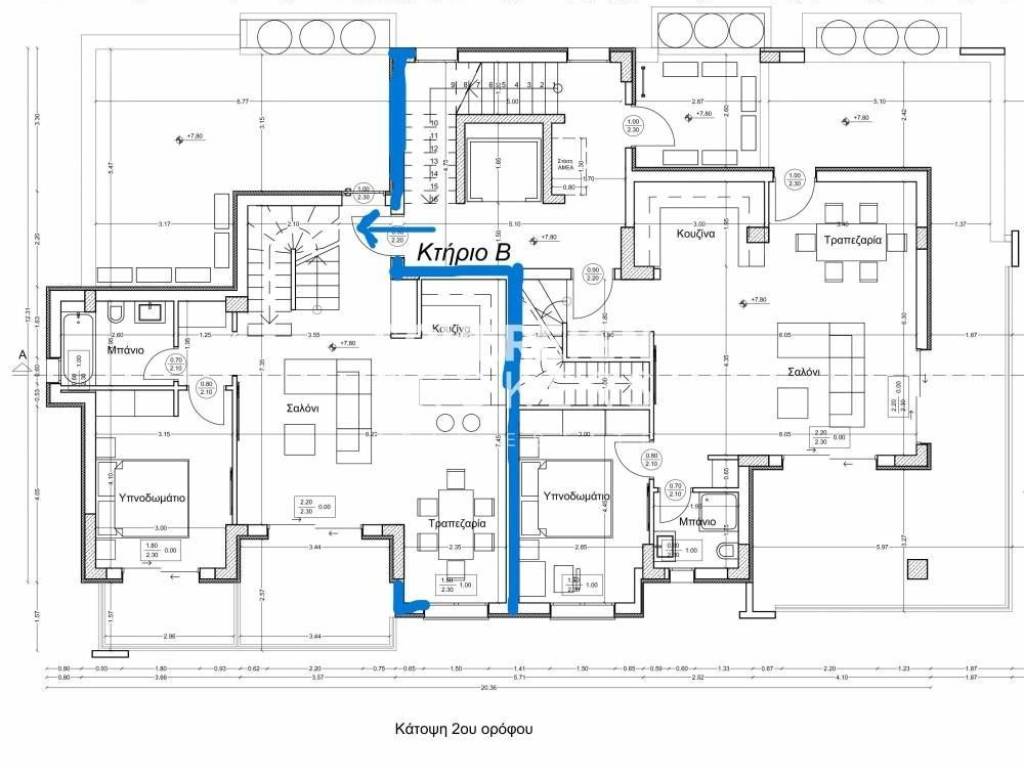
This corner property develops on 2 levels and features 3 bedrooms, a living room, a kitchen, an open kitchen with a living room and 2 bathrooms. It also features 2 wc in total in a building with 3 floors.
Walking through the property someone can feel the spacious sitting room while yet being able to envision any possible changes within rooms. Secondary and supplementary rooms are also a bonus for the property as it has a storage room.
View-wise, the property enjoys sea view. Sitting on the balconies you can enjoy the spectacular views at your own comfort. This property comes unfurnished (wardrobe) with ceramic tiles flooring.
Other features that the property enjoy, include: autonomous heating system with heatpump, aluminium joinery with double glass, aluminium joinery, elevator, secure door, with a parking spot, balcony, painted walls, satellite receiver, alarm.
The asking price is 550.000€. For avoiding inconvenience, please use the following reference number when contacting us referring to the above property: Listing No = 8-43588.
Energy consumption