Maisonette Ασίνη, Center, Asini

€ 280,000
3
80 m²
2
No
Balcony

Note

Listing updated on 03/29/2026
Description

This description has been translated automatically by Google Translate and may not be accurate

reference: 2108282

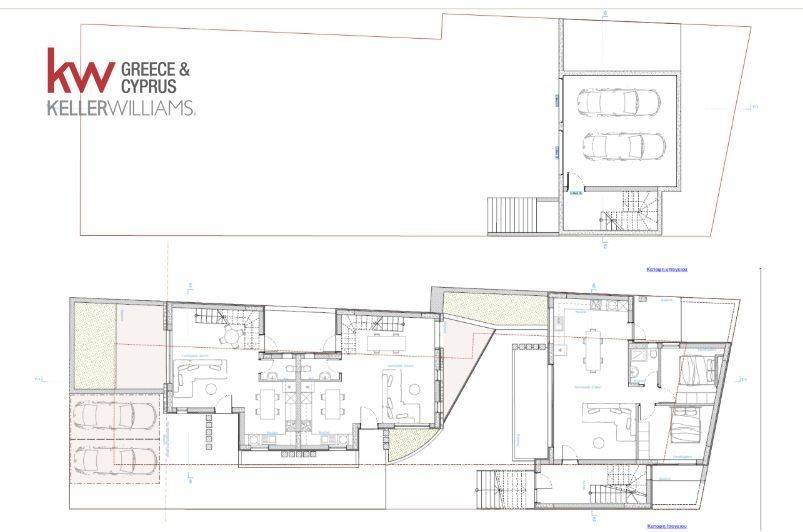
In one of the most charming and tranquil corners of Argolida, right in the heart of Asini, Nafplio, a maisonette under construction is offered for sale – not just a house, but a well-crafted dream of a home. A residence that harmoniously combines contemporary architecture, quality construction, and the aesthetic of the Mediterranean lifestyle. The home is spread over two levels – ground floor and first floor – with a total area of 80.04 sq.m. On the ground floor, you’ll find an open-plan layout featuring a welcoming living room, a functional kitchen, and a WC, all bathed in natural light. An elegant internal staircase leads to the first floor, where two bright and spacious bedrooms and a comfortable bathroom complete the warm, homey feel of this thoughtfully designed residence. Its southeast orientation allows the sunlight to flood in from early morning, creating a natural sense of wellness that lasts all day. The cross-ventilation and airy layout enhance the feeling of openness, vitality, and freedom. This property stands out for its attention to detail and top-quality materials: thermal façade, waterproofing, thermal insulation, tiled pitched roof, and ceramic tile flooring. The aluminum frames with thermal break, double-glazed energy-efficient windows, and heavy-duty electric shutters offer comfort, security, and energy efficiency. The maisonette also includes a security door, insect screens, a private garden, and an open-air parking space, creating the perfect balance between functionality and privacy. It is located in a quiet residential area, just steps away from a village square, church, and the beach, offering both serenity and everyday convenience. The property comes with pre-installation for a heat pump system, and the flexibility to choose and install terminal units (fan coils) based on the owner’s preferences. A solar water heater further enhances the home’s energy autonomy and efficiency. Asini is a place where natural beauty, authenticity, and accessibility converge. Beautiful beaches like Tolo and Plaka Drepano are just 2–7 km away, while the historic town of Nafplio is only 8 km from your doorstep. Athens lies just 140 km away, and Athens International Airport (El. Venizelos) is approximately 160 km, making the location ideal for vacation, permanent residence, or even a hybrid lifestyle. This is not simply an investment in real estate — it is an investment in a way of life. Whether you're looking for a vacation home, a permanent retreat, or a smart rental investment with short-term lease potential, this property offers the opportunity to live or invest in a place where the sea, history, and peace coexist in perfect harmony. Feel free to contact us for any information. We are always at your disposal. KW FOR YOU, 27 Sidiras Merarchias, Nafplio, Tel: +30 27520 26767, kwforyou@kwgreece.gr, www.kwforyou.gr. 275 27530 FORTY FORCE, 24.02.2019, : Eleni Lytsogianni *Attention, for the indication of the property it is necessary to show your identity card and your VAT number, as well as the signature of the corresponding indication form according to the Law 4072/11-04-2012 (Government Gazette 86 A).
Features
Type
Maisonette
Contract
Sale
Floor
Ground floor
Lift
No
Surface
80 m²
Rooms
3
Bedrooms
2
Bathrooms
2
Furnished
No
Balcony
Yes
Garage, car parking
1 parking space
Heating
Central
Other features
  • Attic
  • Security door
  • Window frames in double glass / metal
Price information
Price
€ 280,000
Price per m²
3,500 €/m²
Energy efficiency
  • Condition

    New / Under construction
  • Heating

    Central
  • Energy certification

    Exempt
Discover every corner of the property
+23
Additional options

Contact the advertiser

Or