3-room flat new, third floor, Peraia, Thermaikos

€ 140,000
3
40 m²
1
3
Yes
Balcony

Note

Listing updated on 01/09/2026
Description

This description has been translated automatically by Google Translate and may not be accurate

reference: KR942

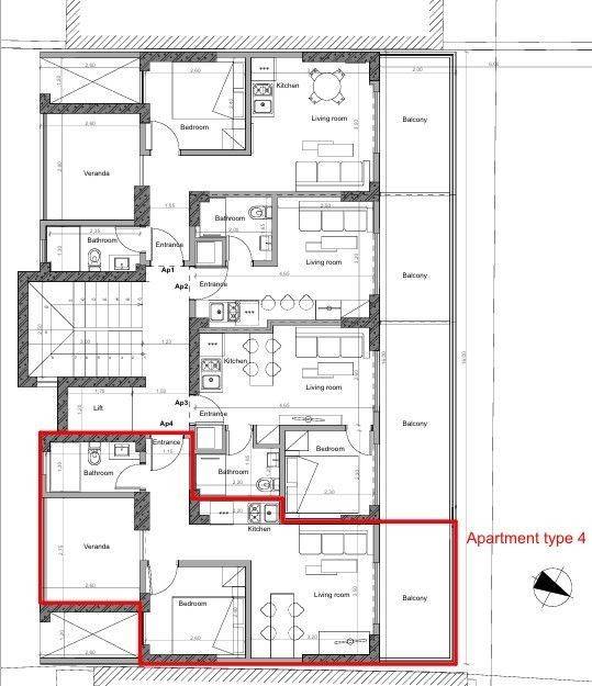
Square footage - 40.22m2+7.45m2 Price - €140,000. Construction deadline: by the end of 2026 Floor - third (not the last). Building with elevator Distance from the beach: 50m Contains: Living room with kitchen and dining room, 1 bedroom, bathroom. The second bedroom is actually a projected veranda, which is designed in such a way that after moving in, the user can use it as a second bedroom. The electrical installation for the room will be completely separated. It has a large balcony. Additional content: Ceramics, PVC carpentry, security entrance door, 1 air conditioner per apartment, mosquito nets... Electric floor heating. The price does not include kitchen or other furniture. Parking is purchased separately at a price of €5,000 Orientation: North and South Benefits! New construction. Close to the center and the beach. Near the pharmacy, mini market, cafe, restaurant, grocer, promenade.... Wider center of Peree. Payment dynamics: Upon advance payment, 30% of the value is paid. The rest is paid in 4 parts over approximately 3 months in accordance with the dynamics of the works. Distances: to the airport in Thessaloniki: 20 km, to the center of Thessaloniki 36 km, to Gevgelija: 118 km, to Niš 448 km, to Belgrade 682 km. Contract the tour by CLICK ***Code: KR942***
Features
Type
Apartment
Contract
Sale | Income property
Floor
3 floor
Building floors
4
Lift
Yes
Surface
40 m²
Rooms
3
Bedrooms
2
Bathrooms
1
Balcony
Yes
Garage, car parking
1 parking space
Heating
Independent, powered by heat pump
Air conditioning
Independent, cold/hot
Other features
  • Security door
Price information
Price
€ 140,000
Price per m²
3,500 €/m²
Energy efficiency

Energy consumption

A+

Discover every corner of the property
+14
Additional options

Contact the advertiser

Or