3-room flat Αναγνώστου Γογονή 171, Χανιά 731 00, Ελλάδα, Perivolia, Therisos

€ 285,000
3
78 m²
1
Yes
Balcony
Cellar

Note

Listing updated on 01/10/2026
Description

This description has been translated automatically by Google Translate and may not be accurate

reference: 1955

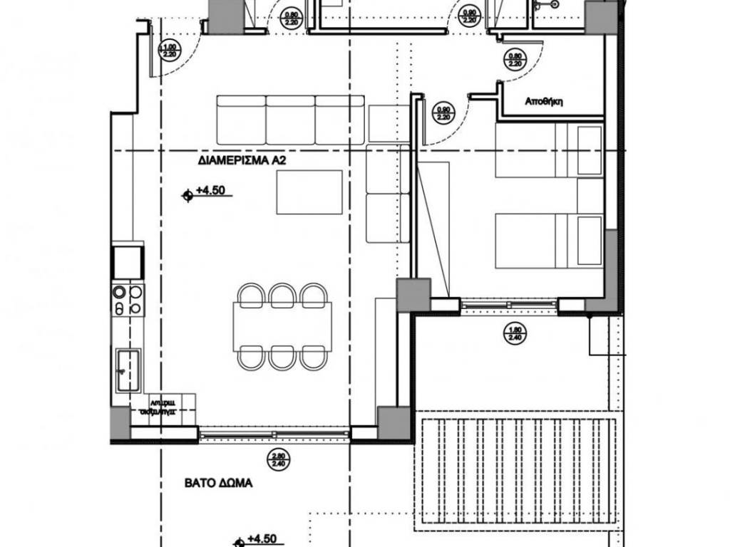
For sale: under-construction apartment of 78 sq.m. in the Pachianá area of Chania. It is a through apartment located on the 1st floor of a modern building with an elevator and includes a parking space. It consists of two bedrooms, an open-plan living room–kitchen, bathroom, storage room, and balconies totaling 17 sq.m. It features aluminum window frames, tiled floors, and autonomous cooling–heating with an individual electric system. Its energy efficiency class is A. It is located close to a bus stop, schools, and a shopping center, with easy access to the National Road and the city’s tourist areas. The area offers schools, supermarkets, pharmacies, cafés, and taverns, and is within short distance from the center of Chania, making it an ideal choice for families. Sale price: €285,000. Property code: 1955. Real estate agency fee: 2.5% (VAT included). More properties: www.petroulakis-realestate.gr Real Estate Office Petroulakis Dimitris Voloudakidon 22 str, Chania, Greece www.petroulakis-realestate.gr petroulakis.dim@gmail.com Tel. : +30 2821044455 Mobile: +30 6946284629 / +30 6977220559 In order to see the property, it is necessary to have your ID or Passport according to Law 4072 / 11-4-2012 Government Gazette 86 A.
Features
Type
Apartment | Luxury property
Contract
Sale | Income property
Floor
1 floor
Building floors
3
Lift
Yes
Surface
78 m²
Rooms
3
Bedrooms
2
Furnished
No
Balcony
Yes
Garage, car parking
1 parking space
Heating
Central, power supply
Air conditioning
Independent, cold/hot
Other features
  • External exposure
  • Security door
Price information
Price
€ 285,000
Price per m²
3,654 €/m²
Detail of costs
Condominium fees
No condominium fees
Energy efficiency

Energy consumption

A

Additional options

Contact the advertiser

Or