3-room flat new, first floor, Porto Rafti, Markopoulo

€ 325,000
3
65 m²
3
1
No
Cellar

Note

Listing updated on 04/12/2026
Description

This description has been translated automatically by Google Translate and may not be accurate

reference: 28519

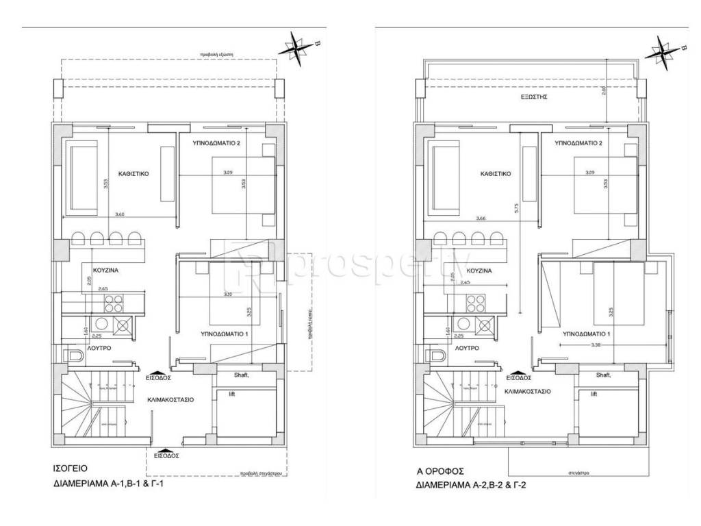
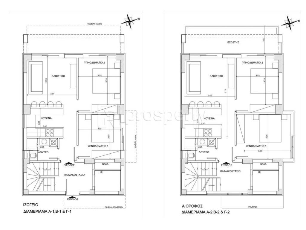
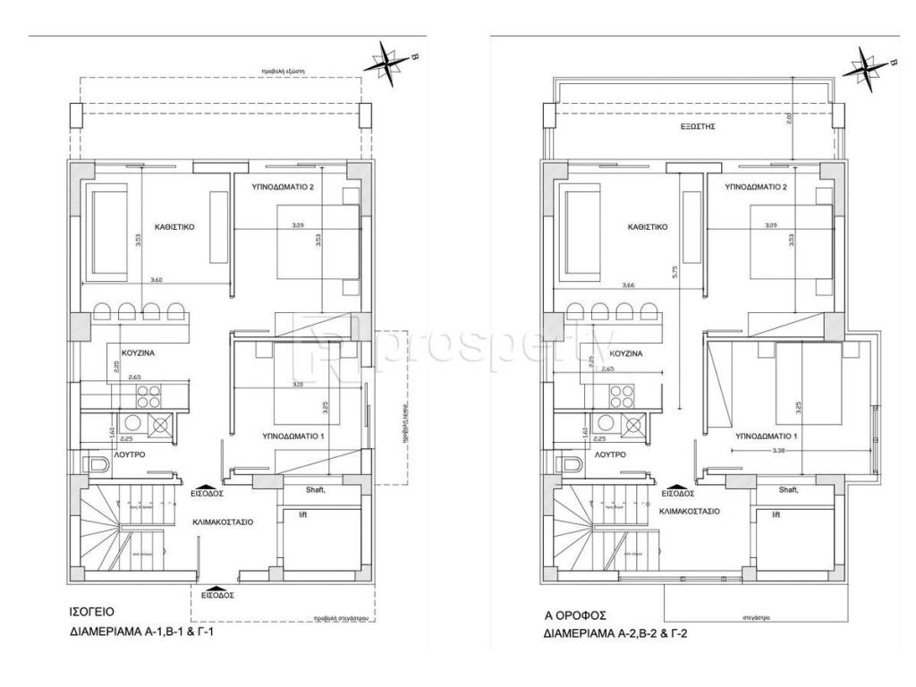
Stylish 65 sqm Apartment in Porto Rafti – Modern Coastal Living Discover a beautifully designed 65 sqm apartment in a prestigious new project in Porto Rafti. The home features 2 bedrooms, 2 bathrooms, and 1 guest WC, perfectly arranged for comfort and functionality. The 30 sqm basement with natural light offers versatile space for an office, playroom, or storage. The 62 sqm rooftop/loft provides an ideal area for relaxation, entertainment, or a private roof garden. Additional units available in the same project: -247 sqm maisonette, with 3 bedrooms, 2 bathrooms, guest WC, 60 sqm basement, and 220 sqm private garden with optional pool, priced at €650,000. -62 sqm apartment, with 2 bedrooms, 2 bathrooms, 1 guest WC, 30 sqm basement, and 200 sqm private garden, priced at €325,000. This is a rare opportunity to own a modern, luxurious home by the sea, with options to suit every lifestyle and budget. With the purchase of the property, we fully undertake the notarization and transfer process, ensuring that the transaction is completed safely and reliably. https://marketplace.theprosperty.com/listings/15524 ☎️ 210 6812500
Features
Type
Apartment
Contract
Sale
Floor
1 floor
Building floors
1
Lift
No
Surface
65 m²
Rooms
3
Bedrooms
2
Bathrooms
3
Furnished
No
Balcony
No
Garage, car parking
2 parking space
Heating
Central, floor heating, powered by heat pump
Air conditioning
Independent, cold/hot
Other features
  • Alarm system
  • External exposure
  • Security door
  • Window frames in double glass / metal
  • Pool
Price information
Price
€ 325,000
Price per m²
5,000 €/m²
Energy efficiency

Energy consumption

A+

Discover every corner of the property
+16
Additional options

Contact the advertiser

Or