1-bedroom flat new, ground floor, Mournies, El. Venizelos

€ 180,000
1
41 m²
1
G
Yes
Balcony
Cellar

Note

Listing updated on 01/28/2026
Description

This description has been translated automatically by Google Translate and may not be accurate

reference: EK-10679237

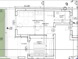
For sale is an under-construction ground floor apartment with a total surface of 41.53 sq.m., located in a modern residential building in Mournies, Chania, a quiet and well-organized residential area. The apartment consists of one bedroom, an open-plan living area with kitchen, and a bathroom. The layout is functional and efficiently designed, making optimal use of the available space. The property includes an underground parking space as well as an underground storage room of 6.70 sq.m., adding significant value and everyday practicality. The building is currently under construction, with an estimated completion time of approximately two years, and will follow modern construction standards and contemporary architectural design. Mournies is a residential suburb of Chania with permanent residents and full local amenities. The property offers easy access: approximately 4 km from Chania city center approximately 6 km from Souda port approximately 12 km from Chania International Airport An excellent option for investment, first-time buyers, or a compact residence with low maintenance costs. Asking price: €180,000
Features
Type
Apartment
Contract
Sale | Income property
Floor
Ground floor
Lift
Yes
Surface
41 m²
Rooms
1
Bedrooms
1
Bathrooms
1
Balcony
Yes
Garage, car parking
1 parking space
Heating
Independent
Other features
  • Security door
Price information
Price
€ 180,000
Price per m²
4,390 €/m²
Energy efficiency

Energy consumption

A+

Additional options

Contact the advertiser

Or