Single-family detached house Αβέρωφ, 38 189 00 Σαλαμίνα, Paloukia, Salamina

€ 70,000
127 m²
Cellar

Note

Listing updated on 01/20/2026
Description

This description has been translated automatically by Google Translate and may not be accurate

reference: EK-10704943

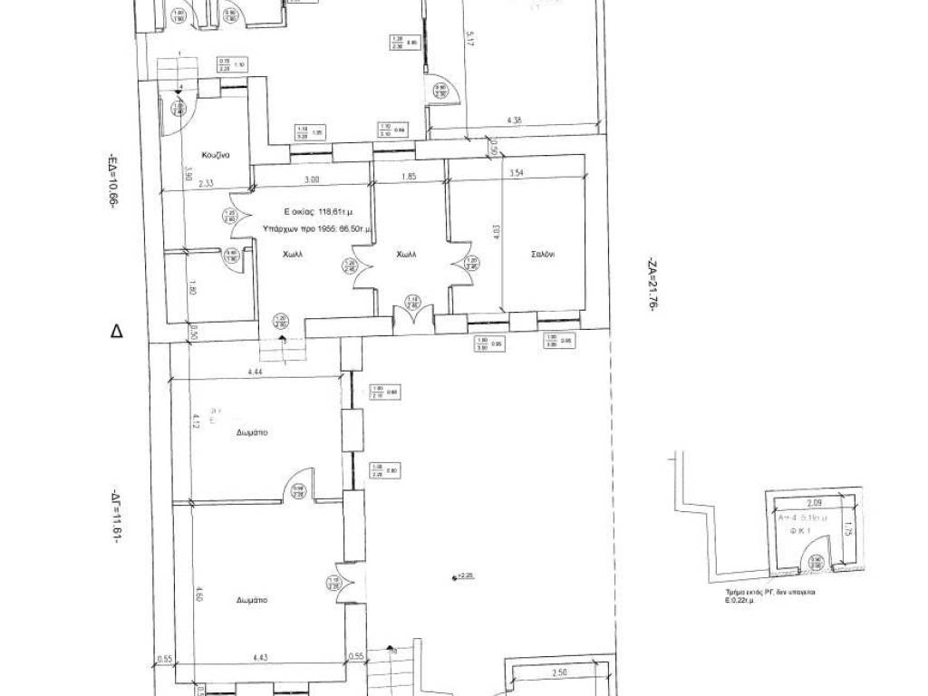
A 127 sq.m. house for sale, including external spaces: three rooms in the rear courtyard and one room (bathroom) in the front courtyard, plus a small storage room at the entrance. Situated on a 256 sq.m. plot. The property requires renovation. The building has been recently inspected by a certified engineer for structural integrity. Floor plans and a topographical diagram are available. Location: Paloukia, Salamina
Features
Type
Single-family detached house
Contract
Sale
Floor
Ground floor
Surface
127 m²
Price information
Price
€ 70,000
Price per m²
551 €/m²
Energy efficiency

Energy consumption

Ε

Discover every corner of the property
+8
Advertiser
user male

Private person

Additional options

Contact the advertiser

user male

Private person