

Note
This description has been translated automatically by Google Translate and may not be accurate
reference: 732717
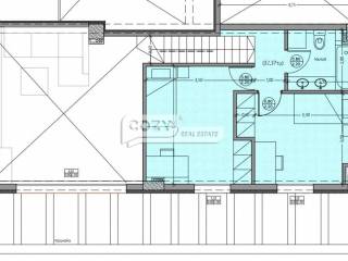
Thessaloniki, Karapournaki: For sale, newly built, luxury construction, luxurious Apartment-Loft 126.74sq.m. [101.39sq.m Net] frontage on the 4th-5th floor... It consists on the 4th floor of a living room with fireplace, separate kitchen, master bedroom and wc .. on the 5th floor. 2 rooms and a bathroom. Heating with the latest technology heat pump, energy-efficient aluminum frames with triple glazing, electric shutters, armored, air conditioning pre-installation, ac and alarm pre-installation, 2 designated underground parking spaces with electric vehicle charging, underground storage 5.93 sq m, cameras, energy class A+. This is an excellent construction, according to the new KENAK.. Price 607000. Property Code: #732717 cozy For more new real estate opportunities of the company see here: www.cozyestate.grCozy Real Estate Head office: 154 Delfon, Thessaloniki 54248 +30 2310 811109 +306936030577sales@cozyestate.gr Branch: Komninon 23 & Ermou corner, Thessaloniki Center 54623 +30 2310 227788
Energy consumption
A+