3-room flat Νικαίας 6, 544 53, Θεσσαλονίκη, Kato Toumpa, Toumpa

€ 180,000
3
75 m²
1
1
Yes

Note

Listing updated on 04/18/2026
Description

This description has been translated automatically by Google Translate and may not be accurate

reference: 331-5763

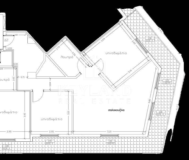
Property Code: 331-5763 - Apartment FOR SALE in Thessaloniki - Center Kato Toumpa for € 180.000 . This 75.00 sq. m. Apartment is on the 1 st floor and features 2 Bedrooms, an open-plan kitchen/living room, bathroom . The property also boasts Heating system: Individual - Natural gas, tiled floor, view of the Urban landscape, Window frames: Synthetic, Security door, elevator, A/C, electrical appliances, double-glazed windows, open space, balconies: 20 sqm. The building was constructed in 1968 and renovated in 2025 . Building Energy Rating: D Distance from sea 1100 meters, Distance from the city center: 2500 meters, Distance from nearest airport: 14700 meters, Nearest metro station at 750 meters.

Features
Type
Apartment
Contract
Sale
Floor
1 floor
Building floors
4
Lift
Yes
Surface
75 m²
Rooms
3
Bedrooms
2
Bathrooms
1
Furnished
No
Balcony
No
Heating
Independent, powered by methane
Air conditioning
Independent, cold/hot
Other features
  • Security door
  • Window frames in double glass / PVC
Price information
Price
€ 180,000
Price per m²
2,400 €/m²
Energy efficiency

Energy consumption

Δ

Discover every corner of the property
+18
Additional options

Contact the advertiser

Or