Maisonette Υμηττός κέντρο, Agios Petros kai Pavlos, Imittos

€ 320,000
3
98 m²
2
Yes
Cellar

Note

Listing updated on 02/24/2026
Description

This description has been translated automatically by Google Translate and may not be accurate

reference: 3668

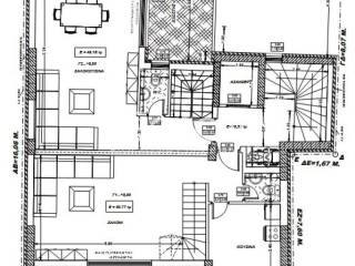
Property Code: 3668 - Maisonette FOR SALE in Imittos Imittos center for € 320.000 . This 98.00 sq. m. Maisonette consists of 2 levels and features 2 Bedrooms, an open-plan kitchen/living room, bathroom and a WC. The property also boasts Heating system: Individual - Natural gas, tiled floor, view of the Mountain, Window frames: Energy efficient, Armourplated door, elevator, accessibility for people with disabilities, parking, a storage unit sqm, garden, electric car charging facilities, pre-installation for A/C, pre-installation for alarm system, insect screens, double-glazed windows, solar-powered water heater, attic, intercom TV, open space, internal staircase, balconies: 25 sqm. The construction begun in 2026 . Building Energy Rating: A+ Distance from sea 8000 meters, Distance from the city center: 4000 meters, Distance from nearest airport: 30000 meters, Nearest metro station at 2000 meters.

Features
Type
Maisonette | Luxury property
Contract
Sale
Floor
4 floor
Building floors
4
Lift
Yes
Surface
98 m²
Rooms
3
Bedrooms
2
Bathrooms
2
Furnished
No
Balcony
No
Garage, car parking
1 in garage/box, 1 parking space
Heating
Independent, powered by methane
Other features
  • Attic
  • Security door
Price information
Price
€ 320,000
Price per m²
3,265 €/m²
Energy efficiency

Energy consumption

A+

Discover every corner of the property
+2
Additional options

Contact the advertiser

Or