2-room flat excellent condition, fourth floor, Center, Volos

€ 500/month
2
48 m²
1
4
Yes
Balcony

Note

Listing updated on 03/26/2026
Description

This description has been translated automatically by Google Translate and may not be accurate

reference: 4599

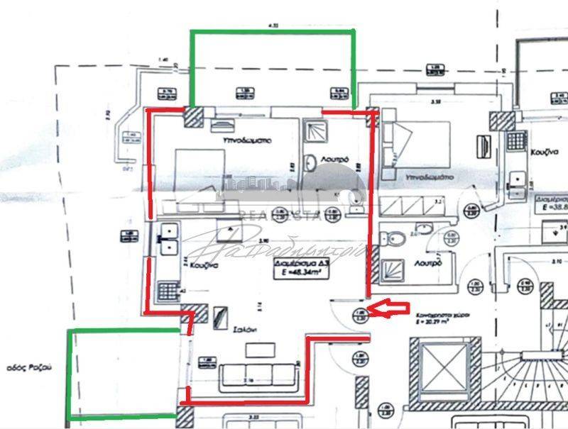
Property Code: 4599 - Apartment FOR RENT in Volos Metamorfosi for € 500 . This 48.00 sq. m. Apartment is on the 4 th floor and features 1 Bedroom, an open-plan kitchen/living room, bathroom . The property also boasts Heating system: Individual - Natural gas, tiled floor, view of the Urban landscape, Window frames: Aluminium, Security door, elevator, accessibility for people with disabilities, double-glazed windows, balconies: 10 sqm. The building was constructed in 1995 and renovated in 2019 . Building Energy Rating: B+

Features
Type
Apartment
Contract
Rent
Floor
4 floor
Lift
Yes
Surface
48 m²
Rooms
2
Bedrooms
1
Bathrooms
1
Furnished
No
Balcony
Yes
Heating
Independent, powered by methane
Other features
  • External exposure
  • Security door
  • Window frames in double glass / metal
Price information
Price
€ 500/month
Price per m²
10 €/m²
Detail of costs
Condominium fees
€ 15/month
Deposit
Not indicated
Energy efficiency

Energy consumption

B+

Discover every corner of the property
+10
Additional options

Contact the advertiser

Or