

reference: 7200185
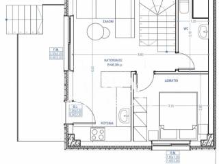
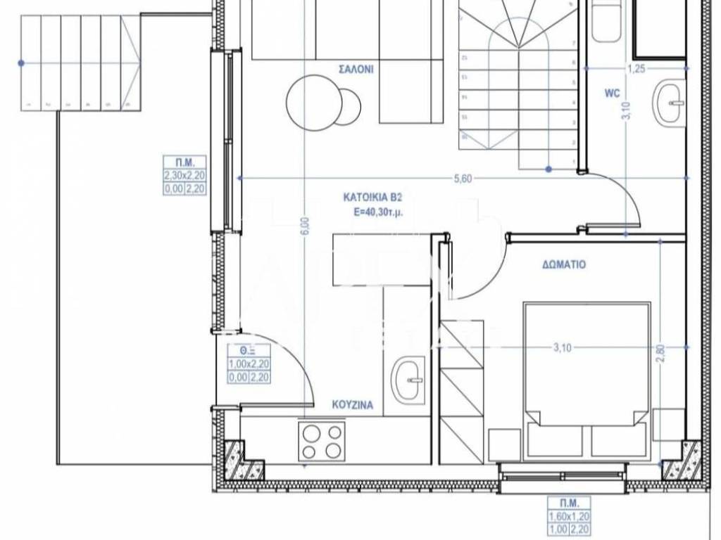
Luxuriously built maisonette of 51,81sq.m. 200m. from the beach, for sale in the Nikiti area. It is developed on two levels, has three spacious bedrooms, a bright open plan kitchen with living room, two bathrooms and storage space. It has large veranda, air conditioning, armored door and double glazed windows with insect screens. It is situated in an ideal location, close to supermarkets, shops, beach bars and restaurants.
The asking price is 170.000€. For avoiding inconvenience, please use the following reference number when contacting us referring to the above property: Listing No = 7200185.

Year of construction
2026Condition
New / Under constructionHeating
IndependentAir conditioner
Independent, cold/hotΑλεξάνδρα Γεωργιάδου