Shop - Commercial property for Sale

€ 55,000
41 m²

Note

Listing updated on 04/10/2026
Description

This description has been translated automatically by Google Translate and may not be accurate

reference: 2326028

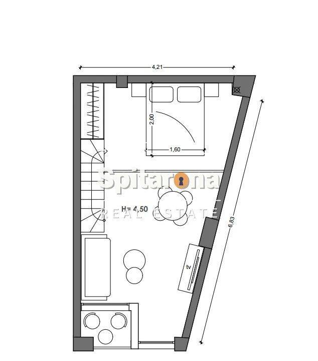
Thessaloniki – Analipsi | Ground Floor Store 41 sq.m. for Sale – Ideal for Loft Conversion In the highly sought-after area of Analipsi, Thessaloniki, a ground floor retail space of total surface 41 sq.m. is available for sale. The property is street-facing, offering excellent visibility and accessibility, and is developed on two levels, consisting of a 30 sq.m. ground floor and an 11 sq.m. built mezzanine of main use. This property presents an outstanding investment opportunity, as it is ideal for change of use and conversion into a modern loft-style apartment, suitable for private residence or rental exploitation (long-term or short-term). It is located in a prime location, right next to Analipsi Metro Station and close to bus stops, supermarkets, retail shops, the New Waterfront, Universities, and the city center, ensuring strong demand and convenience in everyday living. The property requires renovation, giving the future owner the flexibility to design and customize the space according to their needs and preferences. **Sale Price: €55,000** Thessaloniki, Analipsi, ground floor store, investment property, loft conversion, change of use, mezzanine, near metro, New Waterfront, city center, renovation project, property for sale. The information and characteristics of the properties have been registered based on data and information provided by the owner of the property. Attention! In order to indicate the property, it is necessary to show the police ID and the VAT number. yours according to Law 4072/11-4-2012 Government Gazette 86 A. SPITARONA REAL ESTATE 12 Kaisareias, Kato Toumba 6909382830 - 6980937758 www.spitaronarealestate.gr info@spitaronarealestate.gr
Features
Contract
Sale
Surface
41 m²
Other features
  • External exposure
Price information
Price
€ 55,000
Price per m²
1,341 €/m²
Energy efficiency

Energy consumption

Η

Discover every corner of the property
+18
Additional options

Contact the advertiser

Or