4-room flat new, third floor, Agios Georgios, Neo Psychiko

€ 525,000
4
97 m²
2
3
Yes
Balcony
Cellar

Note

Listing updated on 04/15/2026
Description

This description has been translated automatically by Google Translate and may not be accurate

reference: 2340323

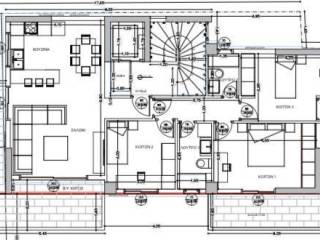
Apartment For sale, floor: 3rd, in Neo Psychiko - Faros. The Apartment is 97 sq.m.. It consists of: 3 bedrooms, 2 bathrooms, 1 kitchens, 1 living rooms and it also has 1 parkings (1 Underground). The property was built in 2026. Its heating is Autonomous with Heat pump, Air conditioning, Solar water system, Sound insulation, Thermal insulation, Thermal facade are also available, it has Alluminum frames with Double glazed - Energy Efficient windows, the energy certificate is: A++ and its floors are Tiles, Wooden. The property's status is: Under construction, it is close to Metro, Transportation, Park, School, Square, Church, Kindergarten, Super Market, Cafe/Restaurants, it has Nature, Good view. The Apartment is Whole floor, Bright, Airy, Sunny, Airy, Ramp / Wheelchair access, Luxury, it is suitable for Investment, Embassy and it also has the following unique features and advantages: Window Screens, Tents, Elevator, Storage, Security door, CCTV, Security alarm, Fire extinguishing system, Fire extinguishers, Smoke detector, Automatic watering, Grass, Quiet neighborhood, Energy autonomous, Fiber line, Porch, Smart home, Electric shutters, Car charger. Price: €525.000. VMT Real Estate Investment and Development, contact phone: 6981051148, email: vmtrealestategreece@gmail.com, veravld555@gmail.com, website:
Features
Type
Apartment | Luxury property
Contract
Sale | Income property
Floor
3 floor
Lift
Yes
Surface
97 m²
Rooms
4
Bedrooms
3
Bathrooms
2
Furnished
No
Balcony
Yes
Garage, car parking
1 in garage/box, 1 parking space
Heating
Central, powered by heat pump
Air conditioning
Independent, cold/hot
Other features
  • Alarm system
  • Security door
  • Window frames in double glass / metal
Price information
Price
€ 525,000
Price per m²
5,412 €/m²
Energy efficiency

Energy consumption

A+

Additional options

Contact the advertiser

Or