2-room flat Μαντζάκου 10, Αθήνα 11473, Neapoli Exarcheion, Exarchia - Neapoli

€ 580/month
2
48 m²
1
G
Furnished

Note

Listing updated on 04/20/2026
Description

This description has been translated automatically by Google Translate and may not be accurate

reference: MB 04

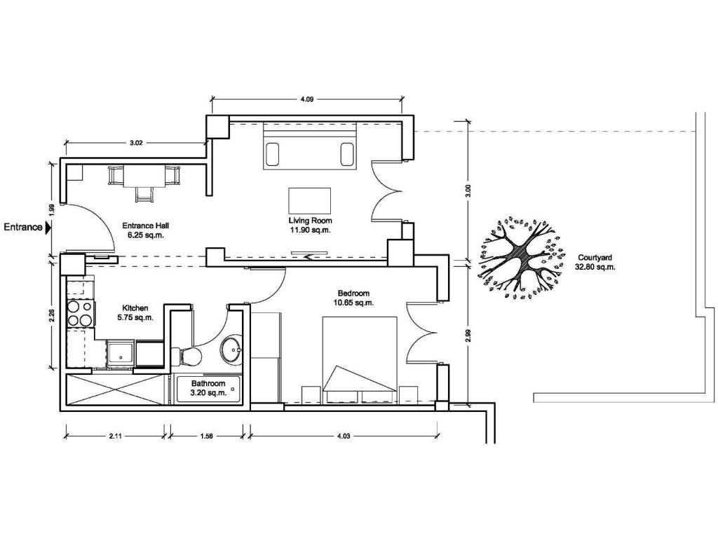
Ground floor apartment of 48 sq. m. on a very quiet street in Strefi Hill, furnished and fully equipped with electrical supplies, fully renovated in 2016 , with double glazed aluminium frames, new fitted kitchen, security door, air condition. 1 entrance hall with open plan kitchen, 1 living room with the possibility to be used as a second bedroom, 1 bedroom, 1 bathroom, and an outdoor patio that can be transformed into a beautiful garden. Price: 580 € pcm
If you want to know more, you can talk to Dimitris Papapetrou.
Features
Type
Apartment
Contract
Rent
Floor
Ground floor
Surface
48 m²
Rooms
2
Bedrooms
1
Bathrooms
1
Furnished
Yes
Air conditioning
Independent, cold/hot
Other features
  • Security door
  • Window frames in double glass / metal
Price information
Price
€ 580/month
Price per m²
12 €/m²
Detail of costs
Deposit
Not indicated
Energy efficiency
  • Year of construction

    1968
  • Condition

    Excellent / Refurbished
  • Air conditioner

    Independent, cold/hot
  • Energy certification

    Exempt
Discover every corner of the property
+14
Additional options

Contact the advertiser

Or