3-room flat Σκάλα Σωτήρος, Skala Sotiros, Thasos

€ 140,000
3
49 m²
1
1
No
Balcony

Note

Listing updated on 03/13/2026
Description

This description has been translated automatically by Google Translate and may not be accurate

reference: 10-1-17711

Property Code: 10-1-17711 - Apartment FOR SALE in Thasos Skala Sotiros for € 140.000 Exclusivity. This 49.90 sq. m. Apartment is on the 1 st floor and features 2 Bedrooms, an open-plan kitchen/living room, bathroom . The property also boasts tiled floor, view of the Sea, Window frames: Synthetic, Armourplated door, parking, garden, swimming pool, double-glazed windows, open space, balconies: 1 sqm. The building was constructed in 2026 Distance from sea 200 meters, Distance from the city center: 11000 meters, Distance from nearest airport: 30000 meters,
Olive Residence Complex

The new complex Olive Residence in Skala Sotiros of Thasos, just 200 meters from the sea, is one of the most idyllic tourist destinations.
It consists of 54 residences, emphasizing modern design, within a closed fenced area providing security and tranquility. The materials and design are harmonized with the natural landscape, creating a harmonious blend between contemporary aesthetics and the traditional value of the area. Additionally, the complex has communal swimming pools, tastefully landscaped green spaces with trees and parking spaces.
The residents of the complex can enjoy the azure sea and popular beaches located nearby, offering opportunities for sunbathing and relaxation. Furthermore, residents have easy access to various activities, from enjoying a good coffee at quaint cafes to exploring local flavors at traditional restaurants.
Finally, this complex offers an alternative way of life where luxury meets the simplicity of nature. From high-quality residences and green spaces to close access to crystalline beaches, staying here promises a comprehensive experience rich in tranquility, relaxation, and unforgettable moments.

The complex consists of:
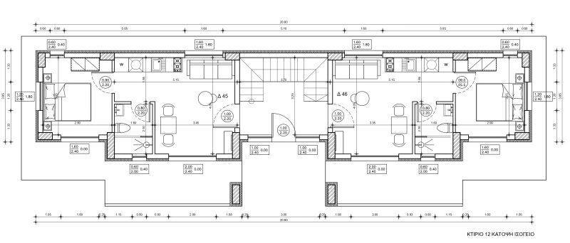
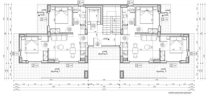
• 14 Ground floor apartments of 49.9sqm, consisting of a living room with kitchen, 2 bedrooms, and 1 bathroom.
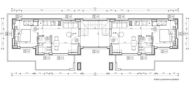
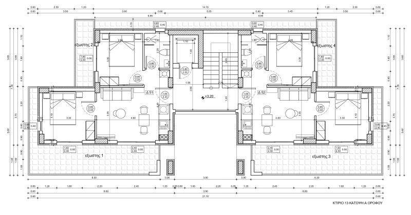
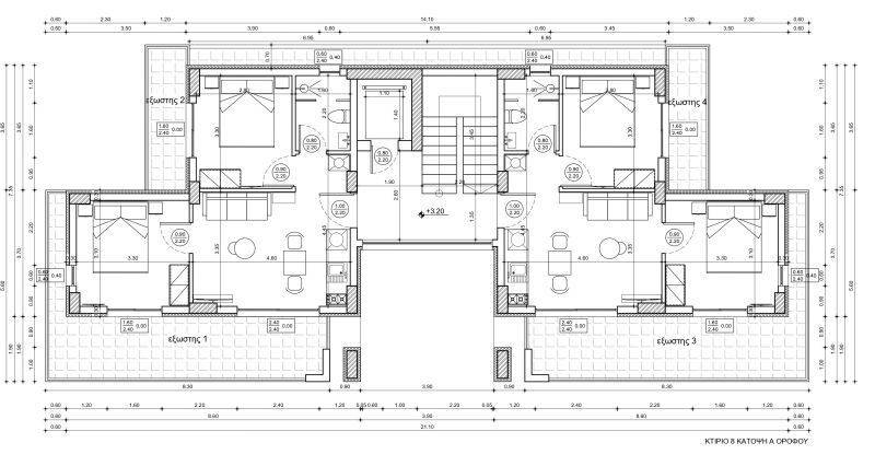
• 14 Apartments of 49.9sqm, consisting of a living room with kitchen, 2 bedrooms, and 1 bathroom.
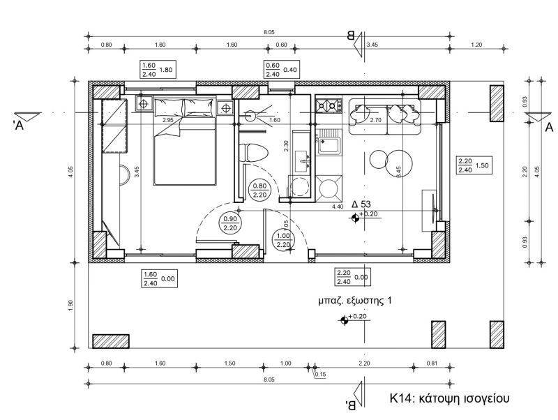
• 12 Ground floor apartments from 36.95 sq.m to 37.52 sq.m, consisting of a living room with kitchen, 1 bedroom, and 1 bathroom.
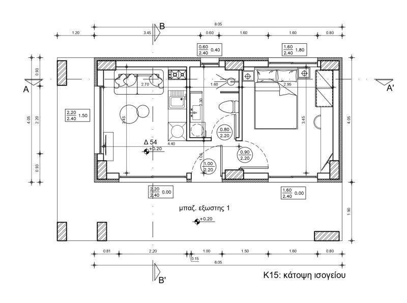
• 12 First floor apartments from 36.95 sq.m to 37.52 sq.m, consisting of a living room with kitchen, 1 bedroom, and 1 bathroom.
• 2 Houses of 32.60 sq.m, consisting of a living room with kitchen, 1 bedroom, and 1 bathroom.

Delivery date of Complex: 30/06/2027
After Sales – Property Management
A house needs maintenance and cleaning in order to maintain its value. During your absence, you can rest assured that through our property management service, we can meet any maintenance needs of your property, confirming that they are carried out according to your instructions.
Includes: Regular Inspection, supervision of the property
✔ Collecting of your mail
✔ Cleaning and maintenance services (of the house, the garden etc)
✔ Bills’ payment (utility bills, taxes)

PAY AS WE BUILD – smart repayment plan
It is a smart repayment program for customers - homebuyers of houses built by our group of companies. The buyer-investor buys with gradual repayment, without bank intervention, based on the progress of the construction works. Get your own newly built house easily without even ‘’noticing’’ it.
For more information, click here:
PAY AS WE BUILD   

Skala Sotiros is located on the northwest coast of Thasos and has experienced significant tourist development in recent years. It is 20 km away from the port and serves as the port of the village of Sotira. The picturesque harbor and beautiful beach with golden sands and shallow waters make the area an ideal destination, while the palm trees add an exotic touch to the place.
Features
Type
Apartment
Contract
Sale | Income property
Floor
1 floor
Lift
No
Surface
49 m²
Rooms
3
Bedrooms
2
Bathrooms
1
Furnished
No
Balcony
Yes
Garage, car parking
1 parking space
Other features
  • Security door
  • Window frames in double glass / PVC
  • Pool
Price information
Price
€ 140,000
Price per m²
2,857 €/m²
Energy efficiency
  • Year of construction

    2026
  • Condition

    New / Under construction
  • Energy certification

    Exempt
Discover every corner of the property
+22
Additional options

Contact the advertiser

Or