Building for Sale

€ 247,000
3
103 m²
1

Note

Listing updated on 08/07/2025
Description

This description has been translated automatically by Google Translate and may not be accurate

reference: 1442838

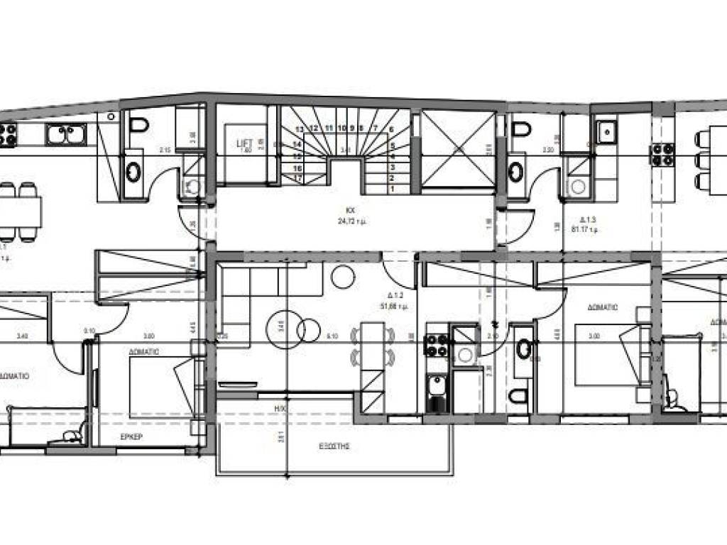
Apartment complex For sale, floor: 1st, in Thermi. The Apartment complex is 103 sq.m.. It consists of: 2 bedrooms, 1 bathrooms, 1 kitchens, 1 living rooms, while it has the following parkings: 1 Closed. The property was built in 2025. Its heating is Autonomous with Natural gas, Underfloor heating are also available with Double glazed - Energy Efficient windows, the energy certificate is: E and its floors are Tiles, Granite. The property's status is: New development, Very good condition, it has Sea, Good, Panoramic view and it has Western Meridian orientation, Luxury, Storage, Security door, CCTV. Price: €247.000. KW North, contact phone: 2310588411, 2310588408, email: kwnorth@kwgreece.gr, website: https://www.kwnorth.gr
Features
Contract
Sale
Type
Building | Luxury property
Surface
103 m²
Rooms
3 rooms, 1 bathroom
Garage, car parking
1 in garage/box, 1 parking space
Availability
Available from 21/02/2025
Current building use
Residential
Other features
  • Security door
Price information
Price
€ 247,000
Price per m²
2,398 €/m²
Energy efficiency

Energy consumption

A+

Discover every corner of the property
+6
Additional options

Contact the advertiser