Office for Rent

€ 2,300/month
114 m²
2

Note

Listing updated on 02/20/2026
Description

This description has been translated automatically by Google Translate and may not be accurate

reference: EK-8743705

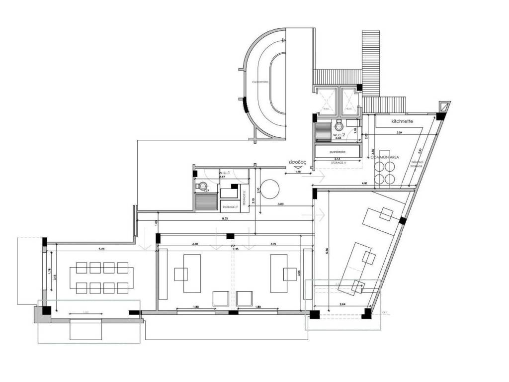
RECEPTION - RECEPTION In the reception area of ​​the office, there is a corresponding desk with a high divider. Behind this desk, we provide a wardrobe, and space for stationery and company files. EMPLOYEES' OFFICE The large employee office was designed to accommodate 6 full workstations. The proposed furniture is designed in such a way as to form a complete workstation for each employee, without creating confusion between them. At the same time, fabric dividers have been provided between the workstations, comfortable corridors and distances, as well as additional shared furniture for the needs of each company. Hidden lighting has been provided in the boxes of the old roller blinds, each desk needs its own table lighting, and in the false ceiling, we provide rails with spotlights or simple false ceiling spotlights for general lighting. MEETING ROOM For the meeting room we have planned a large conference table with pendant lighting above. In the C formed by the old roller shutter boxes, hidden lighting should be installed. Also, on the wall where the door is located, we have planned a large piece of furniture with a combination of cabinets and shelves for the office archive as well as for the exhibition of professional and other elements. We will provide relevant photos of the 3D model early next week. KITCHEN-PRINTER AREA In the kitchen, we chose to separate the printer area from the kitchen area with tall cabinets (refrigerator and pantry). The wardrobe area in the kitchen should be predominantly configured to accommodate the office's electromechanical equipment.
Features
Contract
Rent
Type
Office | Luxury property
Surface
114 m²
Rooms
2 bathrooms
Building floors
5
Other features
  • Alarm system
  • External exposure
  • False ceiling
  • Fire detectors
  • Security door
Price information
Price
€ 2,300/month
Price per m²
20 €/m²
Detail of costs
Condominium fees
€ 20/month
Deposit
Not indicated
Energy efficiency

Energy consumption

B

Discover every corner of the property
+16
Additional options

Contact the advertiser

Or