

Note
This description has been translated automatically by Google Translate and may not be accurate
reference: 2992
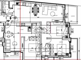
apartment for sale in pylea of thessaloniki - suburbs for 240.000€ (listing no 2992). another property brought to you by vision home. located in the administrative area of pylea, region of thessaloniki - suburbs, this property is now available for sale. this apartment is built on the first floor and sized about 72sqm. altough the building is under construction, it is expected to be finished on the highest standards of the market which can be seen through the available photos accompanying the listing.
this property features 2 bedrooms, an open kitchen with a living room and a bathroom.
secondary and supplementary rooms are also a bonus for the property as it has a storage room.
view-wise, the property enjoys mountain view. sitting on the balconies you can enjoy the spectacular views at your own comfort. this property comes with ceramic tiles flooring.
other features that the property enjoy, include: autonomous heating system with natural gas, synthetic joinery, elevator, secure door, with a parking spot, balcony, satellite receiver, internal staircase, cable tv.
the asking price is 240.000€. for avoiding inconvenience, please use the following reference number when contacting us referring to the above property: listing no = 2992.
**in order to suggestion the property it is necessary to present a police id or a tax register number**

Energy consumption
A+