2-room flat Βάρη - Βάρκιζα, Varkiza, Vari - Varkiza

€ 235,000
2
50 m²
1
2
Yes
Cellar

Note

Listing updated on 09/05/2025
Description

This description has been translated automatically by Google Translate and may not be accurate

reference: 1570211

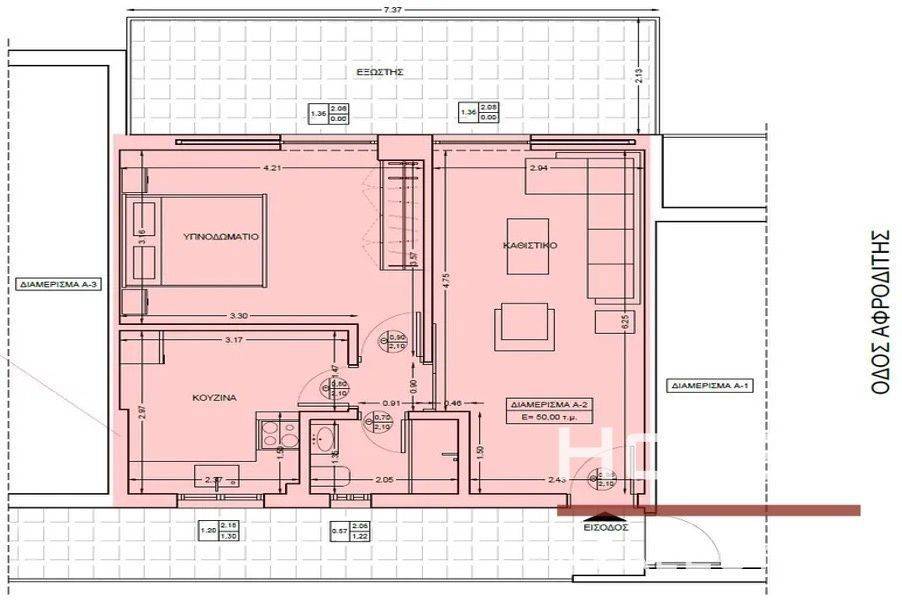
VARKIZA, Center, apartment 50 sq.m., 1st floor, 1 bedroom, bright, built in 1975. It consists of a spacious living room, separate kitchen, oven, 1 bedroom and 1 bathroom. It has a very large terrace with a nice view of the garden. It has no heating, single glazing with aluminum frames and oak floors. Finally, it has a large storage room of 10 sq.m. It is located in an excellent area, very quiet, 5 minutes from the beach of Varkiza as well as 5 minutes from the market of Varkiza. Ideal for investment. HOMER REAL ESTATE www.homerestate.gr Τ: 2169008624-5, E: info@homerestate.gr, M:+30 6942229283 WhatsApp, WeChat (ID: HomerEstate2GR), Mary Anagnostiadi (Property Code: 1570211) | This property description as well as the Energy Class (PEA) are based on information provided by the owner, or on behalf of the owner. These property particulars are produced in good faith and do not constitute or form part of any contract. | HOMER does not take any responsibility for the accuracy of the information contained in this document. | Those who attend the viewing of the property must show their ID and their V.A.T., according to Law N.4072/2012 – Government Gazette 86/A/11-4-2012. | The location of the property on the map is indicative.
Features
Type
Apartment
Contract
Sale | Income property
Floor
2 floor
Lift
Yes
Surface
50 m²
Rooms
2
Bedrooms
1
Bathrooms
1
Furnished
No
Balcony
No
Other features
  • Window frames in glass / metal
Price information
Price
€ 235,000
Price per m²
4,700 €/m²
Detail of costs
Condominium fees
€ 20/month
Energy efficiency

Energy consumption

Δ

Discover every corner of the property
+12
Additional options

Contact the advertiser

Or