Building for Sale

€ 200,000
4
171 m²
3+

Note

Listing updated on 04/15/2026
Description

This description has been translated automatically by Google Translate and may not be accurate

reference: EK-9242709

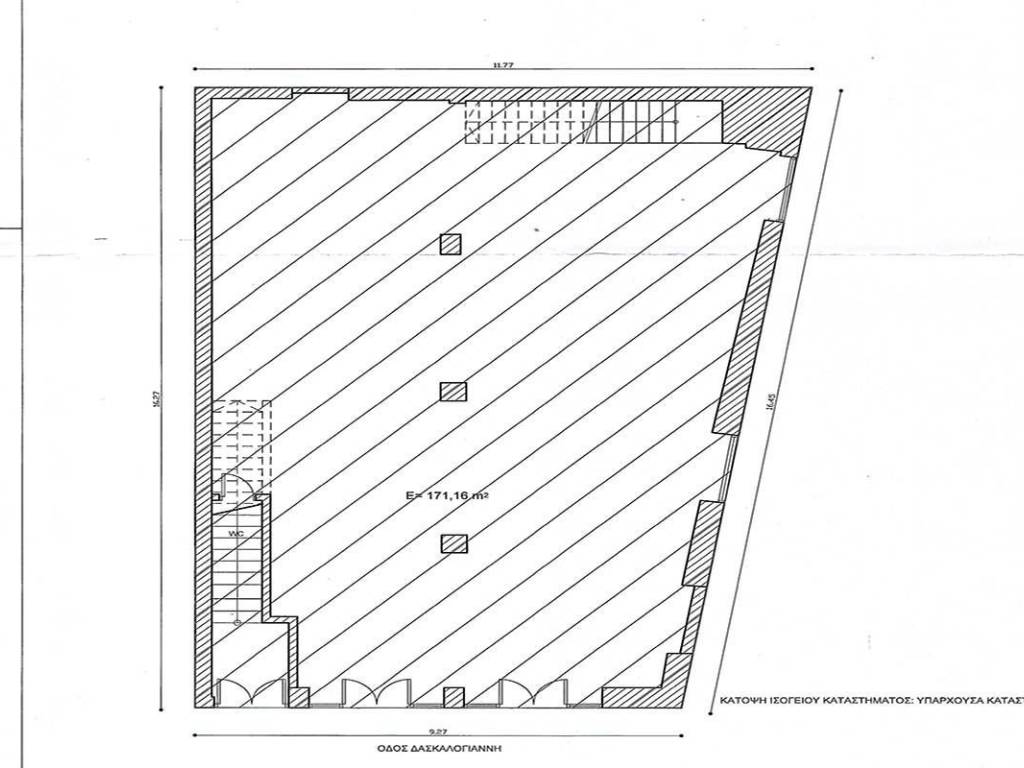
For sale a corner building with high ceilings few meters away from Sitia center. The roof belongs to the owner of the building. It measures 171m2 5m high Built year 1959 with enforcement concrete Originally was declared as storage, the recent years declared as shop. There are two stairs lead up on the roof. As it is open plan, could be divided to smaller spaces or different kind of conversions.
Features
Contract
Sale | Income property
Type
Building
Surface
171 m²
Rooms
4 rooms, 3+ bathrooms
Building floors
1
Availability
Available from 12/06/2025
Other features
  • External exposure
  • Exposure north, east
Price information
Price
€ 200,000
Price per m²
1,170 €/m²
Energy efficiency

Energy consumption

Ε

Additional options

Contact the advertiser

Or