3-room flat new, ground floor, Center, Kalamaria

€ 260,000
3
78 m²
1
G
No
Balcony
Cellar

Note

Listing updated on 02/24/2026
Description

This description has been translated automatically by Google Translate and may not be accurate

reference: EK-9517327

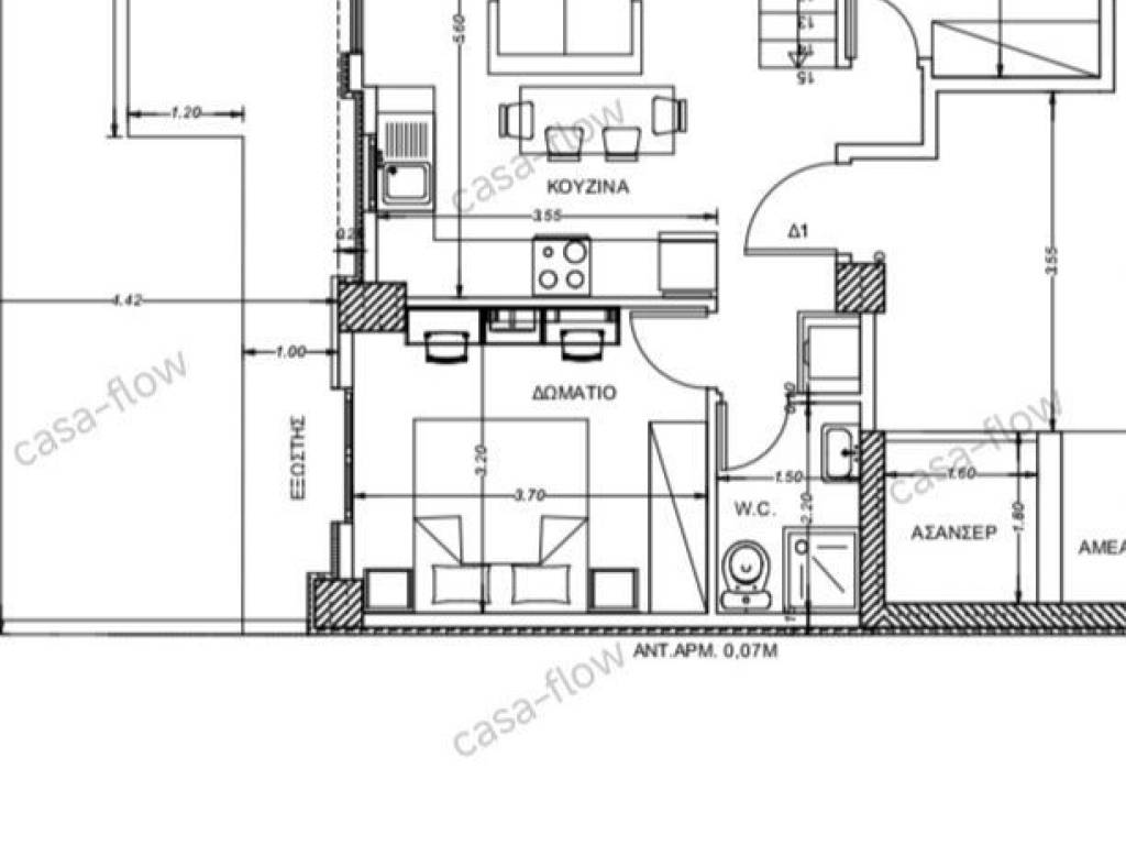
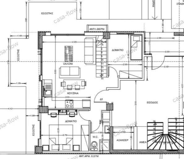
For Sale – Newly Built Ground Floor Apartment with Playroom – Kalamaria | Property ID: 17965557 In Kalamaria, a newly built ground floor apartment is offered for sale, with a total surface of 78 sq.m., plus a 50 sq.m. basement playroom with natural light, accessible directly from the apartment via an internal staircase. Property Features: Open-plan living room with kitchen,2 bedrooms,1 bathroom Autonomous heating system with heat pump & underfloor heating Energy-efficient windows & security door Large verandas – corner apartment, dual-aspect & very bright Wheelchair accessible (disabled access) 1 private parking space Basement playroom of 50 sq.m. with natural lighting Additional Highlights: Modern energy-efficient construction Excellent orientation Suitable both for families and as an investment opportunity Εstimated completion: 2026. For property viewing, a valid ID card or passport is required.
Features
Type
Apartment | Luxury property
Contract
Sale | Income property
Floor
Ground floor
Building floors
4
Lift
No
Surface
78 m²
Rooms
3
Bedrooms
2
Bathrooms
1
Furnished
No
Balcony
Yes
Garage, car parking
1 parking space
Heating
Central, floor heating, powered by heat pump
Other features
  • External exposure
  • Security door
  • Window frames in double glass / metal
Price information
Price
€ 260,000
Price per m²
3,333 €/m²
Energy efficiency

Energy consumption

A+

Discover every corner of the property
+13
Additional options

Contact the advertiser

Or