
Want more photos?
Request photos from the advertiserNote
This description has been translated automatically by Google Translate and may not be accurate
reference: 1523027
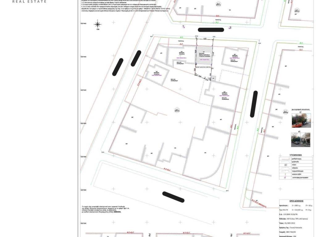
ID: #1523027 - Athens - Center, Agios Eleftherios - Probona - Rizoupoli: FOR SALE plot 224sqm with facade length of 10m with a Coefficient Building of 3, Coverage Ratio 70%. It already includes a building, it's located in a residential area and its zoning is residential.

Θεόδωρος Ταρλαγιάς