Building for Sale

€ 2,300,000
5+
661 m²
2

Note

Listing updated on 04/02/2026
Description

This description has been translated automatically by Google Translate and may not be accurate

reference: 6930


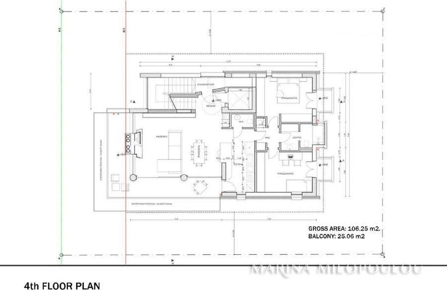
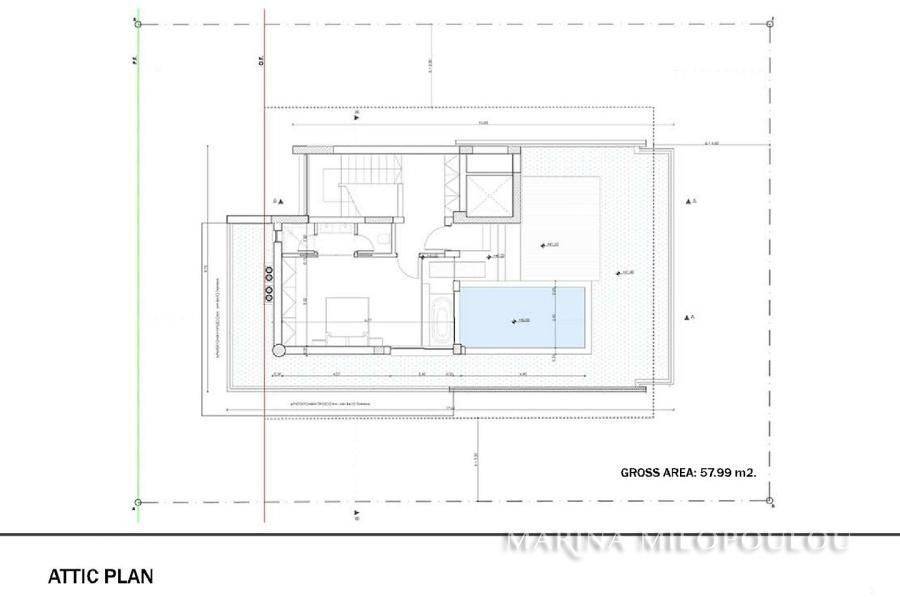
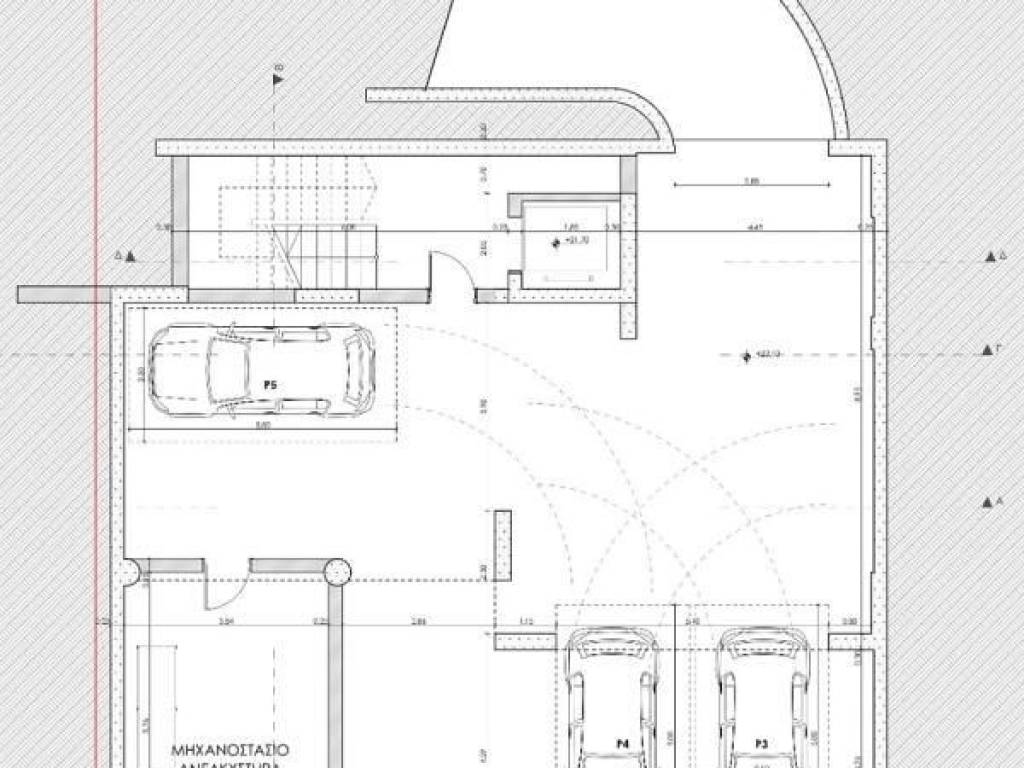
VARKIZA, close to the center and the sea, a residential building, 5 levels plus basement, with piloti and basement parking lots and storage rooms. Total above-ground area of ​​661 sq m, within a plot of 473 sq m. The concrete skeleton has been completed and the building is for sale at this stage of construction, accompanied by the floor plans and the photorealistic renderings The building consists of: - Three floor apartments on the 1st, 2nd and 3rd floor, 103 sqm each, with reception-dining area, open kitchen, 2 bedrooms with balcony, 1 bathroom, 1 wc and corner terrace. - Penthouse maisonette on the 4th - 5th floor with private pool and sea view, total area 164 sqm. On the 4th floor the reception - dining area, open kitchen, 2 bedrooms with veranda, 1 bathroom, 1 wc and corner terrace. On the 5th floor (with access also from the external elevator) an en-suite large bedroom with direct access to the terrace with the pool and excellent sea view. - In the Basement, 199 sq m, there are 3 parking lot and 4 storage rooms, while on the ground floor (piloti) there are 2 more parking lots. Zone price 2100€ It is located 600 meters from the Varkiza's ceneter with stores, cafes and restaurants, 750 meters from the marina and 1 km from the organized beach "Varkiza Resort".
Features
Contract
Sale
Type
Building
Surface
661 m²
Rooms
5+ rooms, 2 bathrooms
Garage, car parking
1 parking space
Availability
Available from 30/10/2025
Other features
  • Security door
  • Exposure west
Price information
Price
€ 2,300,000
Price per m²
3,480 €/m²
Energy efficiency

Energy consumption

A+

Discover every corner of the property
+23
Additional options

Contact the advertiser

Or