Piso de cuatro habitaciones nuevo, cuarta planta, Agios Georgios, Neo Psychiko

€ 558.000
4
97 m²
4
Balcón
Trastero

Nota

Anuncio actualizado el 15/04/2026
Descripción

This description has been translated automatically by Google Translate and may not be accurate

referencia: 2340325

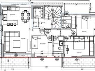
Apartment For sale, floor: 4th, in Neo Psychiko - Faros. The Apartment is 97 sq.m.. It consists of: 3 bedrooms, 1 kitchens, 1 living rooms and it also has 2 parkings (1 Underground, 1 Pilotis space). The property was built in 2026. Its heating is Autonomous with Heat pump, Air conditioning, Solar water system, Sound insulation, Thermal insulation, Thermal facade are also available, it has Alluminum frames with Double glazed - Energy Efficient windows, the energy certificate is: A++ and its floors are Tiles, Wooden. The property's status is: Under construction, it is close to Metro, Transportation, Park, School, Square, Church, Kindergarten, Super Market, Cafe/Restaurants, it has Nature, Good view. The Apartment is Whole floor, Penthouse, With Facade, Bright, Airy, Sunny, Airy, Ramp / Wheelchair access, Luxury, it is suitable for Investment, Revenue source, Embassy and it also has the following unique features and advantages: Window Screens, Tents, Elevator, Storage, Security door, CCTV, Security alarm, Fire extinguishing system, Fire extinguishers, Smoke detector, Grass, Trees, Quiet neighborhood, Energy autonomous, Fiber line, Electric shutters, Car charger. Price: €558.000. VMT Real Estate Investment and Development, contact phone: 6981051148, email: vmtrealestategreece@gmail.com, veravld555@gmail.com, website:
Características
Tipología
Piso | Inmueble de lujo
Contrato
Venta | Inmueble con ingresos
Planta
4 planta
Plantas del edificio
4
Ascensor
Superficie
97 m²
Habitaciones
4
Dormitorios
3
Amueblado
No
Balcón
Garaje, plazas de aparcamiento
1 en garaje privado, 1 en aparcamiento/garaje público
Calefacción
Central, por bomba de calor
Aire acondicionado
Individual, frío/calor
Otras características
  • Carpintería exterior de doble vidrio/metal
  • Exterior
  • Puerta blindada
  • Sistema de alarma
Información del precio
Precio
€ 558.000
Precio del m²
5.753 €/m²
Eficiencia energética

Consumo de energia

A+

Opciones adicionales

Contactar con el anunciante

O