Appartement 1 chambre Δράκου 11, Αθήνα 117 42, Ελλάδα, Fix, Koukaki - Makrygianni

€ 185 000
1
40 m²
1
0
Oui
Meublé

Remarque

Annonce mise à jour le 27/02/2026
Description

This description has been translated automatically by Google Translate and may not be accurate

référence: 512809

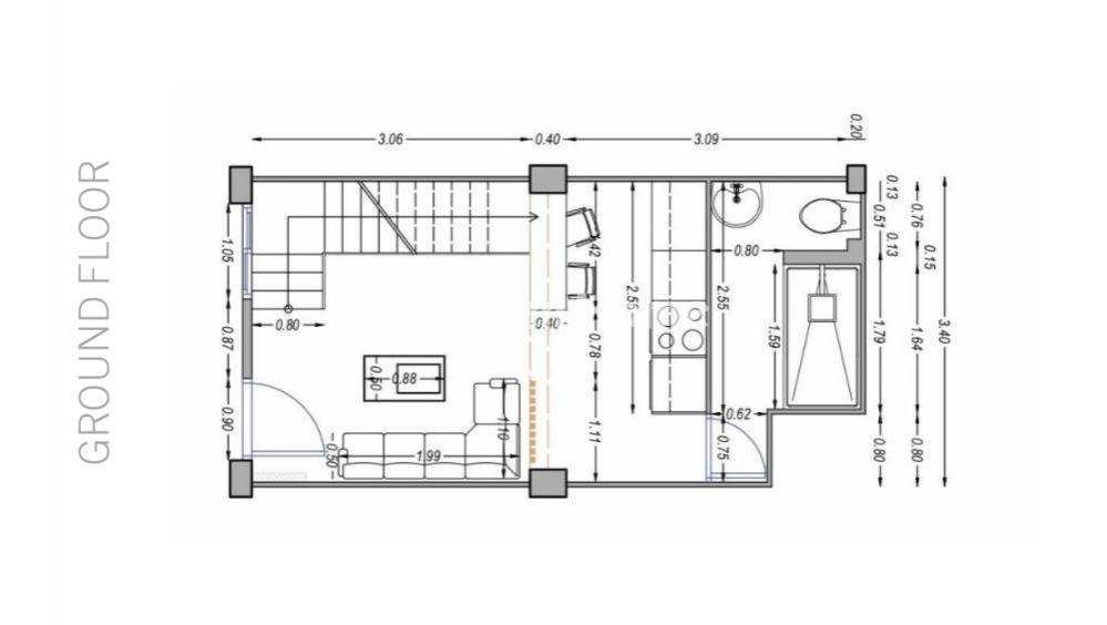
For sale: modern 40 sq.m. loft on Zan Moreas Street, in the heart of Koukaki, one of the most sought-after and commercial areas of Athens. The property is just a 3-minute walk from the metro station and the Acropolis Museum, and within close distance of the Acropolis of Athens and the historic city center. The property results from the conversion of a commercial space into residential use, making it eligible for the Golden Visa program. It represents an excellent investment opportunity for buyers seeking residency through real estate acquisition in a prime location with high demand. Koukaki demonstrates steady development momentum and strong investment interest, with increased demand for both short-term and long-term rentals, offering attractive prospects for yield and capital appreciation. For Sale, apartment, Full Bathrooms: 1, Living Area: 40 Sqm, Rooms: 1, Year Built: 1963, Elevator, Furnished, Floor Number: Ground Floor, Facade, Pets Allowed, Renovated, Floor Type: Wood, Levels: 2, Heating Controller: Autonomous, Heating Medium: Current, Energy Class: E, Renovation Year: 2026
Caractéristiques
Typologie
Appartement
Transaction
Vente
Étage
Rez-de-chaussée
Ascenseur
Oui
Superficie
40 m²
Chambres/pièces
1
Chambres
1
Bains/douches
1
Meublé
Oui
Balcon
Non
Chauffage
Collectif, alimentation électrique
Autres caractéristiques
  • Exposition externe
Informations sur les prix
Prix
€ 185 000
Prix au m²
4 625 €/m²
Efficacité énergétique

Consommation d'énergie

Ε

Découvrez chaque recoin de la propriété
+5
Options additionnelles

Contacter l'annonceur

Ou