Bureau - Cabinet en Location

€ 9 800/mois
937 m²

Remarque

Annonce mise à jour le 14/04/2026
Description

référence: 2338875

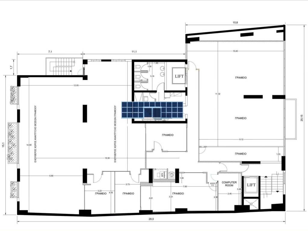
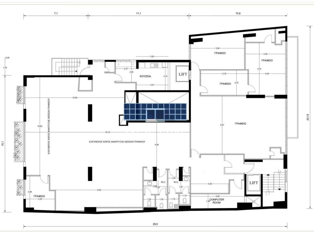
GR Σε σύγχρονο αυτοτελές κτίριο γραφείων κατασκευής 2000 πλησίον του Κέντρου Πολιτισμού Ιδρύματος Σταύρος Νιάρχος και του άξονα της Λ. Συγγρού, διατίθενται άμεσα προς μίσθωση δύο διαδοχικοί όροφοι γραφείων (3ος 477,13 τμ, 2ος 459,79 τμ) συνολικής επιφάνειας 937 τμ. Ενεργειακή κλάση: Γ, πρώην χρήστης πολυεθνική. Το κτίριο είναι προσβάσιμο από Μαζικά Μέσα Μεταφοράς. Προδιαγραφές: ανοικτή διάταξη (open plan), δύο ανελκυστήρες και δύο κλιμακοστάσια, αυτόνομος κλιματισμός VRV (ψύξη/θέρμανση/εξαερισμός) με ζώνες ανά όροφο (παραδίδεται συντηρημένος σε κατάσταση λειτουργίας), ψευδοροφές, βινυλικά δάπεδα, φωτιστικά, πυρανίχνευση, sprinklers στους γραφειακούς χώρους, υποδομή για UPS, computer room, γεννήτρια για υποστήριξη λειτουργίας κεντρικού ανελκυστήρα κτιρίου, υγροί χώροι (κουζίνα & 4 WCs ανά όροφο), διπλά τζάμια. Ο χρήστης τοποθετεί δομημένη καλωδίωση με δικό του κόστος. Μέση τάση, πολύ χαμηλά κοινόχρηστα (~ 0,5 ευρώ/τμ/μήνα). Ζητούμενο καθαρό μίσθωμα: 9.800 ευρώ/μήνα συμπεριλαμβανομένων τεσσάρων (4) θέσεων στάθμευσης, δυνατότητα για μίσθωση έξι επιπλέον θέσεων. Δύο εταιρείες τεχνολογίας λειτουργούν από το εν λόγω κτίριο. EN On a self-contained office building constructed at 2000 (energy class: C), the whole 3rd floor comprising of a total area of 477.13 sqm & the whole 2nd floor comprising of a total area of 459,79 sqm (total leasable area: 937 sqm) are immediately available for lease at € 9,800/month including four (4) parking slots (potential for leasing additional six slots). Former tenant was a multinational company, while two tech companies are currently among the tenants. The building is located close to Stavros Niarchos Foundation Cultural Center & Syngrou axis, while it is accessible by several means of transportation, such as bus lines. Specs: open plan, two elevators and two staircases, autonomous VRV cooling/heating/ventilation system with zones per floor (delivered maintained in working condition), suspended ceilings, vinyl floors, lighting, fire detection, sprinklers in the office areas, infrastructure for UPS, computer room, generator to support the operation of the building's central elevator, wet areas (kitchen & 4 WCs per floor), double glazing. Occupier to install structured cabling at its own cost. Medium voltage, very low utilities (~ 0.5 euros/sqm/month). Energy class: C.
Caractéristiques
Transaction
Location
Typologie
Bureau - Cabinet
Superficie
937 m²
Informations sur les prix
Prix
€ 9 800/mois
Prix au m²
10 €/m²
Détails des coûts
Caution
Non indiquée
Efficacité énergétique

Consommation d'énergie

Γ

Découvrez chaque recoin de la propriété
+14
Options additionnelles

Contacter l'annonceur

Ou