Maisonnette Ευμολπιδών 37, Αθήνα 118 54, Ελλάδα, Gkazi, Gazi - Metaxourgio - Votanikos

€ 550 000
2
110 m²
2
Oui
Balcon
Meublé
Cave

Remarque

Annonce mise à jour le 17/04/2026
Description

This description has been translated automatically by Google Translate and may not be accurate

référence: 488243

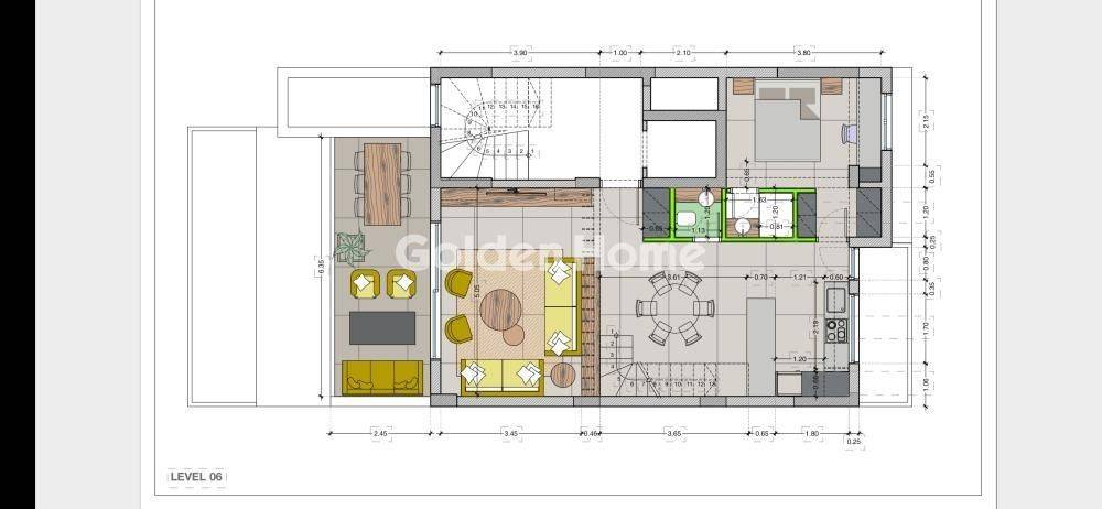
Loft for sale on the 6th and 7th floors (two levels) in the Gazi area, with a total area of 110 sq.m. It consists of 2 luxurious bedrooms eith bathrooms and 1 W/C in the livingroom. It also features a bright and modern dining area that is integrated with the living room and kitchen. The property is currently under construction and is expected to be completed in 2026. Located just 100 meters from Kerameikos metro station and with easy access to bus stops which makes the loft ideal for investment too. The loft is situated in a quiet neighborhood despite being only a few meters away from the market. For Sale, maisonette, Full Bathrooms: 2, Living Area: 110 Sqm, Rooms: 2, Year Built: 2025, Air Conditioning, View, Balcony, Elevator, Furnished, Internal Stairs, Secure Door, Solar Water Heating, Alarm, Storage Space, Garage, Floor Number: 6, For Commercial Use, Pets Allowed, Satellite Receiver, Bright, Joinery: Aluminium, Floor Type: Wood, Accessible For Disabled, Levels: 2, Road Type: Asphalt, Zoning: Residential, Energy Class: Ap
Caractéristiques
Typologie
Maisonnette
Transaction
Vente
Étage
6 étage
Ascenseur
Oui
Superficie
110 m²
Chambres/pièces
2
Chambres
2
Bains/douches
2
Meublé
Oui
Balcon
Oui
Box, places stationnement
1 place(s) de parking
Climatisation
Autonome, froid/chaud
Autres caractéristiques
  • Porte blindée
  • Système d'alarme
  • Système TV avec parabole satellitaire
Informations sur les prix
Prix
€ 550 000
Prix au m²
5 000 €/m²
Efficacité énergétique

Consommation d'énergie

A+

Découvrez chaque recoin de la propriété
+15
Options additionnelles

Contacter l'annonceur

Ou