Quadrilocale Δραχμής 5, 190 02 Παιανία, Centro, Paiania

€ 450.000
4
121 m²
3
T
Balcone
Cantina

Nota

Annuncio aggiornato il 15/04/2026
Descrizione

This description has been translated automatically by Google Translate and may not be accurate

riferimento: EK-10000507

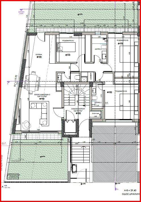
Luxury apartment of 121 sq.m. under construction, located in the most desirable neighborhood of Paiania, featuring an ideal orientation and a contemporary design of high aesthetics. It consists of three bedrooms, two bathrooms, one W.C., an internal laundry-storage room, a spacious kitchen, dining area, and an open-plan living room. Equipped with underfloor heating powered by a heat pump, air conditioning for cooling, a solar water heater, thermal façade insulation, and aluminum frames with thermal break. Additional features include a security alarm system, reinforced security door, and photovoltaic installations that significantly reduce energy consumption. The property enjoys exclusive use of a garden and open space, an underground parking spot, and a storage room. Constructed to high technical standards (plumbing, electrical, and concrete), certified as Energy Class A+, with photographic documentation available showcasing the construction process and quality.
Caratteristiche
Tipologia
Appartamento | Immobile di lusso
Contratto
Vendita
Piano
Piano terra
Ascensore
Superficie
121 m²
Locali
4
Camere da letto
3
Bagni
3
Balcone
Box, posti auto
1 posto auto
Riscaldamento
Centralizzato, a pavimento, alimentazione elettrica
Climatizzazione
Autonomo, freddo/caldo
Altre caratteristiche
  • Impianto di allarme
  • Porta blindata
Informazioni sul prezzo
Prezzo
€ 450.000
Prezzo al m²
3.719 €/m²
Efficienza energetica

Consumo di energia

A+

Inserzionista
user male

Privato

Opzioni aggiuntive

Contatta l'inserzionista

user male

Privato