Trilocale nuovo, secondo piano, Centro, Pylaia

€ 240.000
3
79 m²
2
2
Balcone
Cantina

Nota

Annuncio aggiornato il 04/03/2026
Descrizione

riferimento: 969

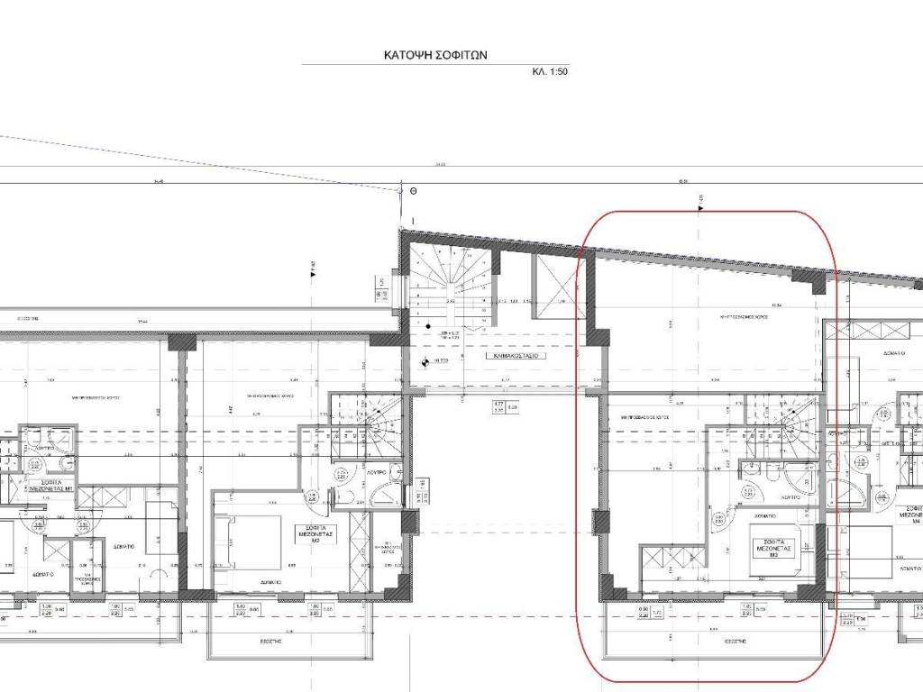
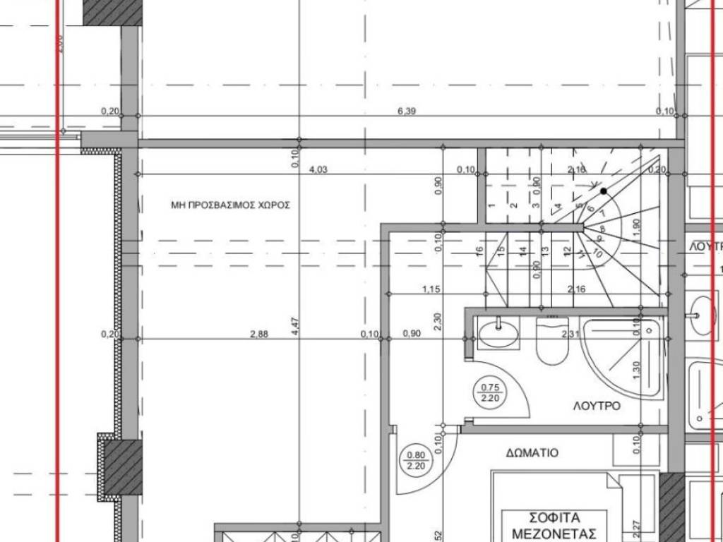
ΜΕΣΙΤΙΚΟ ΓΡΑΦΕΙΟ G-MAS Real Estate ▶ ΕΠΙΣΗΜΟ ΜΕΛΟΣ ΤΟΥ ΣΥΛΛΟΓΟΥ ΜΕΣΙΤΩΝ ΘΕΣΣΑΛΟΝΙΚΗΣ 2025 Επενδυτική πρόταση ️ Κωδικός 969 # : ▶ ΥΠΟ ΚΑΤΑΣΚΕΥΗ ΜΕΖΟΝΕΤΑ, με ΔΥΟ ( 2 ) δωμάτια / σαλονοκουζίνα και ΔΥΟ ( 2) μπάνια, ΜΕΓΑΛΑ μπαλκόνια και ΑΝΟΙΧΤΩΣΙΑ! ✓ 79,20 Τ.Μ. ΜΙΚΤΑ & 65,90 Τ.Μ. ΚΑΘΑΡΑ. ▶ ΗΣΥΧΟΣ ΔΡΟΜΟΣ και ΧΑΜΗΛΟ ΚΤΙΣΜΑ ΑΠΕΝΑΝΤΙ ! Στον 2ο όροφο έχει: → Σαλονοκουζίνα, ΕΝΑ ( 1 ) δωμάτιο & ένα μπάνιο. Στον 3ο όροφο έχει: → ΕΝΑ ( 1 ) δωμάτιο & ένα μπάνιο. ️️️ Η ΟΙΚΟΔΟΜΗ ΕΙΝΑΙ ΣΕ ΗΣΥΧΗ ΓΕΙΤΟΝΙΑ ! ✓ 1 Θέση PARKING, άνετη / χωράει μεγάλο αμάξι. ✓ Αποθήκη. ✓ ΟΛΟΙ οι χώροι έχουν πολύ καλό ΦΥΣΙΚΟ φωτισμό και αερισμό. ✓ ΑΠΟΧΕΤΕΥΣΗ. ✓ ΙΔΙΑΙΤΕΡΗ ΚΑΤΑΣΚΕΥΗ από ΠΟΛΥΠΕΙΡΗ ΚΑΤΑΣΚΕΥΑΣΤΙΚΗ ΕΤΑΙΡΙΑ. ▶ Ιδανικό ακίνητο για ιδιοκατοίκηση, ΚΟΝΤΑ ΣΕ MEΓΑΛΑ SUPER MARKET, ΣΧΟΛΕΙΑ, ΑΓΟΡΑ. ΓΡΗΓΟΡΗ & ΕΥΚΟΛΗ πρόσβαση στο κέντρο της πόλης, στον Περιφερειακό και τα μεγάλα εμπορικά κέντρα, το Αεροδρόμιο και την Χαλκιδική⛱️ . Για ΥΠΟΔΕΙΞΗ των ακινήτων και για περισσότερες επενδυτικές προτάσεις, τηλεφωνήστε στο 6932321463 (Τζήμας Στέργιος). * Απαραίτητη η προσκόμιση Αστυνομικής ταυτότητας ή εγγράφου με αναγραφόμενο τον Α.Φ.Μ., σύμφωνα με τον Ν. 4072/11-4-2012 ΦΕΚ 86Α. ΜΕΣΙΤΙΚΟ ΓΡΑΦΕΙΟ G-MAS Real Estate +306932321463 Σαλαμίνος 10, Θεσσαλονίκη www.g-mas.gr
Caratteristiche
Tipologia
Appartamento | Immobile di lusso
Contratto
Vendita | Immobile a reddito
Piano
2 piano
Piani edificio
2
Ascensore
Superficie
79 m²
Locali
3
Camere da letto
2
Bagni
2
Balcone
Box, posti auto
1 posto auto
Riscaldamento
Autonomo, a pavimento, alimentato a metano
Altre caratteristiche
  • Esposizione esterna
  • Porta blindata
Informazioni sul prezzo
Prezzo
€ 240.000
Prezzo al m²
3.038 €/m²
Efficienza energetica

Consumo di energia

A+

Scopri ogni angolo dell'immobile
+9
Opzioni aggiuntive

Contatta l'inserzionista

Oppure