Ufficio - Studio in Vendita

€ 625.000
669 m²
3+

Nota

Annuncio aggiornato il 27/02/2026
Descrizione

riferimento: 4715

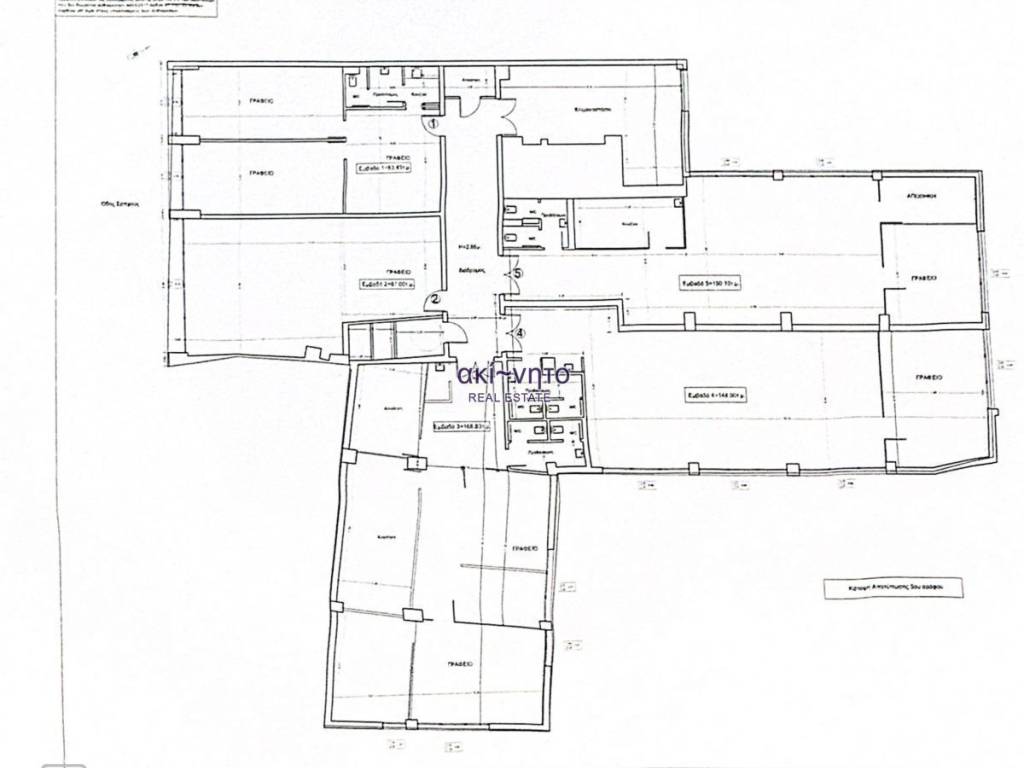
Πωλείται νεόδμητο, γραφείο, πρόσοψης 669τ.μ., στην περιοχή "Βαρδάρης - Λαχανόκηποι - Λαχανόκηποι". Πρόκειται για ένα πολυτελές, διαμπερές και φωτεινό ακίνητο. Βρίσκεται στον 5ο και τελευταίο όροφο της οικοδομής θεά πιάτο θάλασσα και διαθέτει ασανσέρ. Κατασκευάστηκε το 1992. 5ος οροφος Αποτελείται από 4 γραφεία . 1) γραφείο 111τμ 2) οχι δεν πωλειται 3)γραφείο 203τμ 4) γραφείο 177 τμ 5)γραφείο 178τμ υπαρχουν 4 καεκ τέσσερίς παροχης ρευματος τεσσερα υδρομετρα διαμπερες βλεπει θαλασσα Αποτελείται από 4 χώρους και 4 μπάνια(. Επιπλέον διαθέτει 1 θέσης στάθμευσης.) Στα εσωτερικά του στοιχεία αξίζει να σημειωθούν η δομημένη καλωδίωση. Διαθέτει κουφώματα αλουμινίου με διπλά τζάμια. Τα δάπεδα είναι από πλακάκια. Διαθέτει αυτόνομη θέρμανση με ηλεκτρισμός (ατομική). Η ενεργειακή του κλάση είναι Δ. Ο προσανατολισμός είναι ανατολικός. Έχει απεριόριστη θέα στη θάλασσα, στο βουνό και στο δάσος. Βρίσκεται κοντά σε στάση λεωφορείου, στάση μετρό, σταθμό τρένου, λιμάνι, σχολείο, πάρκο και παραλία. Με βάση τα χαρακτηριστικά του μπορεί να χαρακτηριστεί ως μια πολύ καλή επενδυτική επιλογή. Είναι επίσης κατάλληλο και για επαγγελματική χρήση. Τα κατοικίδια είναι ευπρόσδεκτα. Η επιφάνεια του οικοπέδου ανέρχεται στα 1000τ.μ., ενώ των μπαλκονιών στα 12τ.μ.. Τέλος διαθέτει μονοφασικό ρεύμα. Τιμή πώλησης: 625.000€. Το ακίνητο είναι άμεσα διαθέσιμο. Κωδικός ακινήτου: 4715 ακί~νητο Real Estate Ολυμπιάδος 135, Θεσσαλονίκη, Ελλάδα akistsirgiotis@yahoo.gr Τηλέφωνο: 2313069059
Caratteristiche
Contratto
Vendita | Immobile a reddito
Tipologia
Ufficio - Studio | Immobile di lusso
Superficie
669 m²
Locali
3+ bagni
Box, posti auto
1 posto auto
Altre caratteristiche
  • Cablato
  • Esposizione esterna
Informazioni sul prezzo
Prezzo
€ 625.000
Prezzo al m²
934 €/m²
Dettaglio dei costi
Spese condominio
Nessuna spesa condominiale
Efficienza energetica

Consumo di energia

Δ

Scopri ogni angolo dell'immobile
+5
Opzioni aggiuntive

Contatta l'inserzionista

Oppure