Bilocale nuovo, secondo piano, Erithros, Ampelokipoi - Pentagon

€ 279.000
2
57 m²
1
2
Balcone
Cantina

Nota

Annuncio aggiornato il 17/04/2026
Descrizione

This description has been translated automatically by Google Translate and may not be accurate

riferimento: 1889002

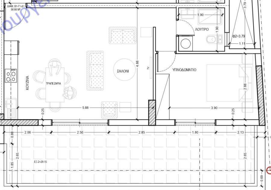
Located in Ampelokipoi, one of Athens’ most sought-after and rapidly developing areas, this modern, luxurious, and corner apartment is offered for sale, currently under construction, with completion scheduled for 2028. The property is designed for optimal functionality and comfort, featuring one spacious bedroom, a contemporary kitchen, and an elegant bathroom. Bright interiors and a well-thought-out layout create a pleasant living environment, while the large verandas enhance the sense of openness and natural light. Built to high standards of quality and energy efficiency (Energy Class A+), the apartment includes autonomous heating, air conditioning, and a solar water heater. Aluminum window frames with double glazing and insect screens, tiled flooring, and a reinforced security door ensure both comfort and safety. Additional features include a storage room, a parking space, and a video intercom system. One of the property’s key advantages is its prime location, offering immediate access to the metro, public transport, local market, universities, and hospitals, as well as easy connectivity to central Athens and major road networks. This is an excellent choice for both private residence and investment, as the area demonstrates strong rental demand and promising future appreciation. The point on the map is not indicative of the address, Price: 279.000€. PROPERTY PASS - Real Estate Services, Tel: +30 2106744660, www.propertypass.gr email: info@propertypass.gr
Caratteristiche
Tipologia
Appartamento | Immobile di lusso
Contratto
Vendita | Immobile a reddito
Piano
2 piano
Ascensore
Superficie
57 m²
Locali
2
Camere da letto
1
Bagni
1
Arredato
No
Balcone
Box, posti auto
1 posto auto
Riscaldamento
Centralizzato
Climatizzazione
Autonomo, freddo/caldo
Altre caratteristiche
  • Esposizione esterna
  • Porta blindata
Informazioni sul prezzo
Prezzo
€ 279.000
Prezzo al m²
4.895 €/m²
Efficienza energetica

Consumo di energia

A+

Opzioni aggiuntive

Contatta l'inserzionista

Oppure