Studio Διόσκουρων 2-16, 546 42, Θεσσαλονίκη, Kato Toumpa, Toumpa

€ 145.000
2
31 m²
1
3
Arredato
Cantina

Nota

Annuncio aggiornato il 16/04/2026
Descrizione

This description has been translated automatically by Google Translate and may not be accurate

riferimento: 115836

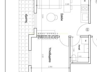
Property Code: 115836 - Studio FOR SALE in Thessaloniki Ippokratio for € 145.000 . This 31.00 sq. m. furnished Studio is on the 3 rd floor and features 1 Bedroom, Livingroom, Kitchen, bathroom . The property also boasts Heating system: Individual - Natural gas, tiled floor, Window frames: Synthetic, Security door, elevator, a storage unit 3 sq.m. sqm, A/C, electrical appliances, open space. The building was constructed in 1968 and renovated in 2026 . Building Energy Rating: D Distance from sea 1000 meters,

A better look to the properties in our web site (www.bellos.net) will ensure the high level of quality of our portfolio. Wether you are interestd in buying or selling, or renting, our experience and dedication to excellence will deliver the best results for you. We also undertake all kind of construction and renovation services to the highest standards and fully supervised construction and construction management. Please do not hesitate to call in our office and contact to our e-mails and viber: www.bellos.net Nikopoleos 46 (Metamorfoseos), 55131, Kalamaria, Thessaloniki T./F. +302310868693 Mob. 6944 019 351 Sofia / 6946797637 Antony Bellos e-mail: info@bellos.net / a_bellos@hotmail.com contact me: sofia.valkanidou viber. 00306944019351 / 00306946797637 facebook : https://www.facebook.com/bellosrealestate
Se vuoi saperne di più, puoi parlare con Μαρια Φιλιππάκη.
Caratteristiche
Tipologia
Studio
Contratto
Vendita | Immobile a reddito
Piano
3 piano
Ascensore
Superficie
31 m²
Locali
2
Camere da letto
1
Bagni
1
Arredato
Balcone
No
Riscaldamento
Autonomo, alimentato a metano
Climatizzazione
Autonomo, freddo/caldo
Altre caratteristiche
  • Esposizione esterna
  • Infissi esterni in vetro / PVC
  • Porta blindata
Informazioni sul prezzo
Prezzo
€ 145.000
Prezzo al m²
4.677 €/m²
Dettaglio dei costi
Spese condominio
€ 20/mese
Efficienza energetica

Consumo di energia

Δ

Scopri ogni angolo dell'immobile
+19
Inserzionista
agent male

Μαρια Φιλιππάκη

scheda agenzia
Opzioni aggiuntive

Contatta l'inserzionista

Oppure
agent male

Μαρια Φιλιππάκη