

Nota
This description has been translated automatically by Google Translate and may not be accurate
riferimento: 1011-17668
Property Code: #1011-17668 | THERMI For sale ORIA THERMI / PANORAMIC corner, luxurious, newly built apartment 102 sq m, 1st floor, modern construction of 2025. Particular attention has been given to energy saving issues.
IT HAS
INDIVIDUAL NATURAL GAS
UNDERFLOOR HEATING
PARKING IN THE GARDEN
OUTDOOR STORAGE IN THE GARDEN
THERMAL-SOUND INSULATING EXTERNAL ALUMINUM FRAMES WITH THERMAL BREAK AND ENERGY-EFFECTIVE GLASS
SAFETY EXTERNAL DOOR
HIGH ENERGY CLASS A WITH THERMAL FAÇADE AND EXCELLENT INSULATIONS IN FLOORS AND WALLS (KENAK)
SCREEN
ELECTRIC BLINDS IN THE LARGE FRAMES
LARGE VERANDAS
OPTIC FIBERS, SATELLITE ANTENNA, INTERNET
WIRING FOR ELECTRIC CAR CHARGING
PRE-INSTALLATION OF AIR CONDITIONING, SOLAR SYSTEM, ALARM
WOODEN OR TILED FLOORS
ELIVER
COLOUR INTERCOM
PERIMETER WALLING, AUTOMATIC LIGHTING AND AUTOMATIC WATERING IN THE COMMON GARDEN
DISABLED ACCESS
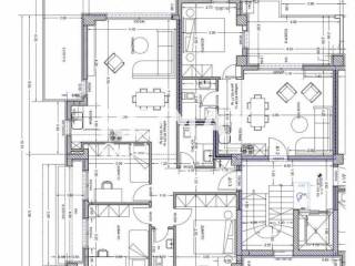
The floor plans are suggested. There is the possibility of personal choices and interventions in both the materials and the interior layout as the apartment is under construction.
DESCRIPTION: It consists of a single living room - kitchen, 3 rooms, 1 bathroom, 1 WC, external storage in the attic. In the living-dining room there are two French doors leading to the large corner central terrace. The kitchen is located in a recess with beautiful kitchen furniture in a corner arrangement. The kitchen also has direct access to the terrace and a window above the sink. All rooms are comfortable with a wardrobe, French door and terrace each. The bathrooms have luxurious sanitary ware (bathtub or shower).
REMAX GOLD For the indication of the properties it is necessary to present the police ID or the VAT number. www.remax-gold.gr
Contact details:
Center: 2310913913, Egnatia 62, Center 546 24
Evosmos: 2310670590, Smyrnis 15, Evosmos 562 24

Consumo di energia
A
ΕΛΕΝΗ ΣΙΔΗΡΟΠΟΥΛΟΥ