Vivenda familiar Λιαπάδες 490 83 Παλαιοκαστρίτες, Palaiokastritsa, Corfu

€ 205.000
4
199 m²
2
Varanda
Cave

Nota

Anúncio atualizado em 15/04/2026
Descrição

This description has been translated automatically by Google Translate and may not be accurate

referência: EK-11253929

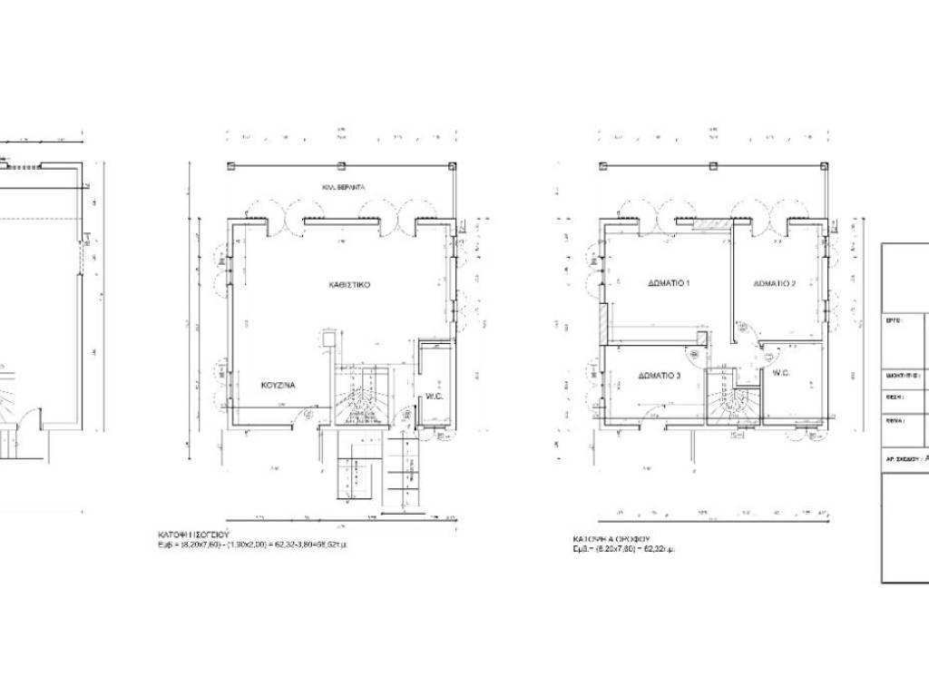
Situated off the main road connecting Liapades to Paleokastritsa, this property is spread over two floors plus a large basement level. The house is being sold in its current condition, meaning a new owner can add their own designs and finishings to it. The ground floor was designed to be an open plan kitchen and sitting area with guest WC, upstairs there are three bedrooms and a family bathroom. The garden belonging to the property extends to the front and back, offering plenty of space to create parking areas and landscape the remaining. Liapades is a lively, year-round village with a thriving community. Close to popular beaches of the area such as Paleokastritsa and Rovinia, this property would make an excellent holiday property or year-round home. Contact For further information or to arrange a viewing, please contact Corfuhomefinders Main Office Dassia 49083 Corfu Greece Phone: +30 26610 33416 Agency Website: http://****.** Property Listing: http://****.** details/21111
Características
Tipologia
Vivenda familiar
Contrato
Venda
Superfície
199 m²
Quartos
4
Quartos
3
Casas de banho
2
Varanda
Sim
Informações de preço
Preço
€ 205.000
Preço por m²
1.030 €/m²
Eficiência energética

Consumo de energia

A

Descubra cada canto da propriedade
+7
Anunciante
user male

Privado

Opções adicionais

Contactar o anunciante

user male

Privado