Apartamento T2 novo, quarto andar, Agios Nikolaos, Charilaou

€ 275.000
2
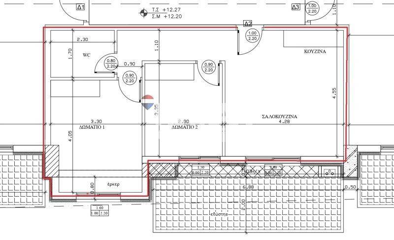
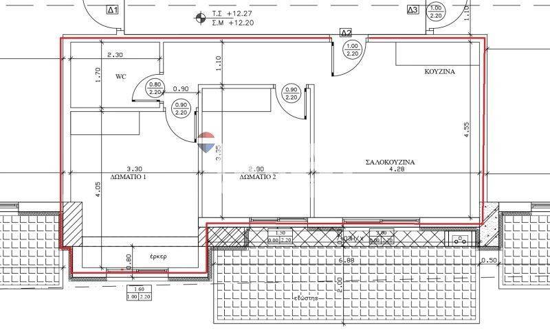
76 m²
1
4
Sim
Cave

Nota

Anúncio atualizado em 16/04/2026
Descrição

This description has been translated automatically by Google Translate and may not be accurate

referência: 86-3702

Property Code: 86-3702 - Apartment FOR SALE in Pylea Center for € 275.000 . This 76.00 sq. m. Apartment is on the 4 th floor and features 2 Bedrooms, an open-plan kitchen/living room, bathroom . The property also boasts Heating system: Heat pump, tiled floor, Window frames: Synthetic, Security door, elevator, parking, a storage unit sqm, pre-installation for A/C, pre-installation for alarm system, double-glazed windows. The building was constructed in 2026 . Building Energy Rating: A+

Se quiser saber mais, pode falar com Κατερίνα Δεδούση.
Características
Tipologia
Apartamento
Contrato
Venda
Andar
4 andar
Elevador
Sim
Superfície
76 m²
Quartos
2
Quartos
2
Casas de banho
1
Mobilado
Não
Varanda
Não
Estacionamento, lugares de estacionamento
1 em estacionamento compartilhado
Aquecimento
Individualizado, alimentado com bomba de calor
Outras características
  • Janelas em vidro duplo / PVC
  • Porta blindada
Informações de preço
Preço
€ 275.000
Preço por m²
3.618 €/m²
Eficiência energética

Consumo de energia

A+

Anunciante
agent male

Κατερίνα Δεδούση

cartão de agência
Opções adicionais

Contactar o anunciante

Ou
agent male

Κατερίνα Δεδούση