1/19


Ангар - Склад Продажа
€ 65 000
Объявление обновлено 20.03.2026
Описание
ID: 544645
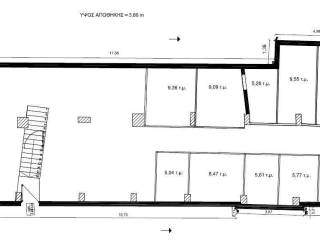
ΡΟΤΟΝΤΑ * Τηλ. Άμεσης Επικοινωνίας: 6934_00_68_19 Πωλείται Επενδυτικό Ακίνητο, αποτελούμενο από 12 Ανεξάρτητες Αποθήκες. Αναλυτικότερα, πωλείται ημιυπόγειος αποθηκευτικός χώρος, επιφάνειας 150τμ, διαμορφωμένος 12 ανεξάρτητες αποθήκες οικοσυσκευής, εμβαδού 5τμ έως 11τμ, ριζικά ανακαινισμένος, αεριζόμενος και απολύτως στεγανός. Διαθέτει φωτισμό με φωτοκύτταρο, κλειστό κύκλωμα παρακολούθησης στον κοινόχρηστο χώρο, δάπεδο πατητή τσιμεντοκονία, πυράντοχες πόρτες ασφαλείας. Βρίσκεται στην οδό Αποστόλου Παύλου, πλησίον της οδού Αρμενοπούλου. Τηλ. Άμεσης Επικοινωνίας: 6934_00_68_19 Κωδικός: 544645 Τιμή: 65.000€ Casa Nova - Real Estate Agents United Παπάφη 62, Θεσσαλονίκη 546 39, Ελλάδα casanovabrokers@gmail.com Τηλέφωνο: 2310 930 999
Характеристики
- Договор
- Продажа | Доходная недвижимость
- Типология
- Склад - Хранилище
- Площадь
- 150 m²
Другие характеристики
- Внешняя планировка
- Проводной доступ
- Железная дверь
Информация о ценах
- Цена
- € 65 000
- Цена за м²
- 433 €/m²
Подробности о расходах
- Плата за кондоминиум
- Никаких кондоминиальных расходов
Откройте для себя каждый уголок объекта недвижимости
Доп. опции