1/2

Студия на продажу, Центр, Ксанти
Ксанти€ 110 000
Объявление обновлено 27.03.2026
Описание
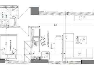
ID: 2708
Γκαρσονιέρα 3ο ορόφου, βρίσκεται στο κέντρο. Εμβαδόν 56,00 m2 (40,00m2 καθαρά). Διαθέτει σαλονοκουζίνα, 1 - υπνοδωμάτιό και μπάνιο. Ενδοδαπέδια θέρμανση - αντλία θερμότητας. Αποθήκη στο υπόγειο. Έτος κατασκευής 2026
Характеристики
- Типология
- Студия
- Договор
- Продажа | Доходная недвижимость
- Этаж
- 3 этаж
- Лифт
- Да
- Площадь
- 56 m²
- Помещения
- 2
- Спальни
- 1
- Ванные
- 1
- Балкон
- Да
- Отопление
- Централизованное, напольное, блок питания
Другие характеристики
Информация о ценах
- Цена
- € 110 000
- Цена за м²
- 1 964 €/m²
Энергоэффективность
Доп. опции