Студия новое, нулевой этаж, Центр, Ханья

€ 140 000
1
36 m²
1
T
Да

Пометка

Объявление обновлено 20.04.2026
Описание

This description has been translated automatically by Google Translate and may not be accurate

ID: AK 4206

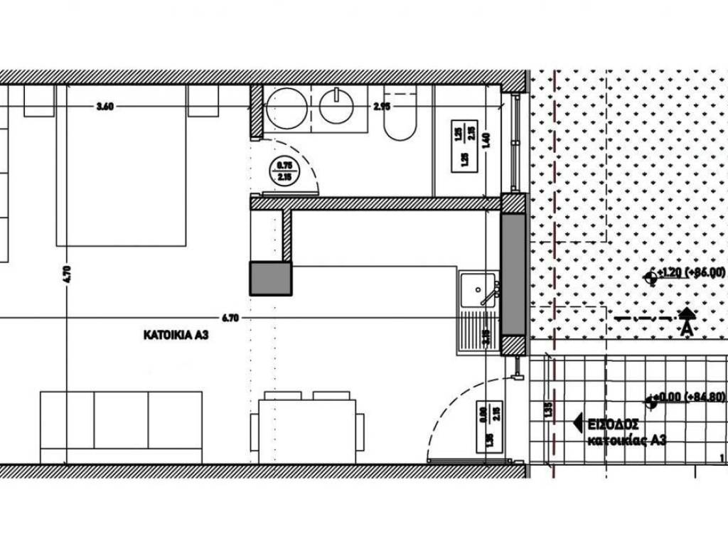
Πωλείται υπό κατασκευή πολυτελές ισόγειο διαμέρισμα (Α3), 36 τ.μ., στη Χαλέπα Χανίων. Σε μικρή σύγχρονη πολυκατοικία, φωτεινό ακίνητο υψηλών προδιαγραφών με πρόσβαση σε κοινόχρηστη πισίνα 15 τ.μ., ιδανικό για ιδιοκατοίκηση ή επένδυση. Διαθέτει ενιαίο χώρο σαλονιού–τραπεζαρίας–κουζίνας, 1 υπνοδωμάτιο και 1 μπάνιο, ενώ περιλαμβάνει εξωτερική θέση στάθμευσης και αποθήκη. Το ακίνητο ξεχωρίζει για τα ποιοτικά υλικά και τα σύγχρονα χαρακτηριστικά του: Κουφώματα αλουμινίου με διπλά ενεργειακά τζάμια, θερμομόνωση και ηχομόνωση. Πόρτα ασφαλείας. Δάπεδα από γρανιτοπλακίδια. Κουζίνα με ντουλάπια λάκας και πάγκο από μάρμαρο Καβάλας. Ηλιακός θερμοσίφωνας. Αυτόνομη θέρμανση/ψύξη με αντλία θερμότητας. Ενεργειακή κλάση Α+. Βρίσκεται σε προνομιακή τοποθεσία, μόλις 3,5 χλμ. από το κέντρο των Χανίων, με εύκολη πρόσβαση σε υποδομές, παραλίες και το αεροδρόμιο. Τιμή: 235.000€ Παράδοση: Τέλος 2027 Κωδικός Ακινήτου: ΑΚ 4205 Μεσιτική Αμοιβή: 2% (+ΦΠΑ) Για περισσότερα ακίνητα επισκεφθείτε την ιστοσελίδα μας: www.europacreteproperties.com
Характеристики
Типология
Квартира | Элитная недвижимость
Договор
Продажа | Доходная недвижимость
Этаж
Нулевой этаж
Этажность здания
2
Лифт
Да
Площадь
36 m²
Помещения
1
Спальни
1
Ванные
1
Меблировано
Нет
Гараж, машиноместа
1 в общая парковка/гараж
Отопление
Централизованное
Кондиционер
Автономное, холод/тепло
Другие характеристики
  • Внешние рамы из двойного стеклопакета/ металла
  • Внешняя планировка
  • Бассейн
  • Железная дверь
Информация о ценах
Цена
€ 140 000
Цена за м²
3 889 €/m²
Энергоэффективность

Потребление энергии

A+

Откройте для себя каждый уголок объекта недвижимости
+2
Доп. опции

Свяжитесь с рекламодателем

Или