1/25


Отдельный дом на одну семью 80 m², подлежит ремонту, Центр, Лесбос - Mitilini
€ 155 000
Объявление обновлено 08.04.2026
Описание
ID: Π 2435 Α
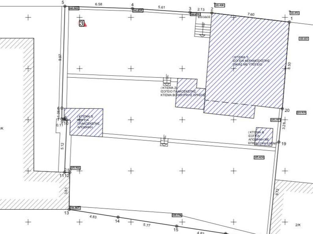
Πρόκειται για ακίνητο που έχει την δυνατότητα αξιοποίησης καθώς το οικόπεδο έχει το δικαίωμα δόμησης 400 τ.μ.
Характеристики
- Типология
- Отдельный дом на одну семью
- Договор
- Продажа | Доходная недвижимость
- Этаж
- Нулевой этаж
- Этажность здания
- 1
- Лифт
- Нет
- Площадь
- 80 m²
- Помещения
- 3
- Спальни
- 2
- Ванные
- 3
- Меблировано
- Нет
- Балкон
- Да
Другие характеристики
- Внешние рамы из стеклопакета/ металла
- Внешняя планировка
Информация о ценах
- Цена
- € 155 000
- Цена за м²
- 1 938 €/m²
Энергоэффективность
Откройте для себя каждый уголок объекта недвижимости
Доп. опции